1  / 2
Продаж без% 2-кімнатної квартири в ЖК Варшавський 3 буд.10.7 - фото 1
Продаж без% 2-кімнатної квартири в ЖК Варшавський 3 буд.10.7 - фото 2

Продаж без% 2-кімнатної квартири в ЖК Варшавський 3 буд.10.7

Київ, Подільський

Поскаржитись
83 000 $
0 переглядів оголошення | 0 сьогодні
Додано: 12 січня 2026, ID: 4661784
Характеристики
  • Без комісії Так 
  • Кімнат
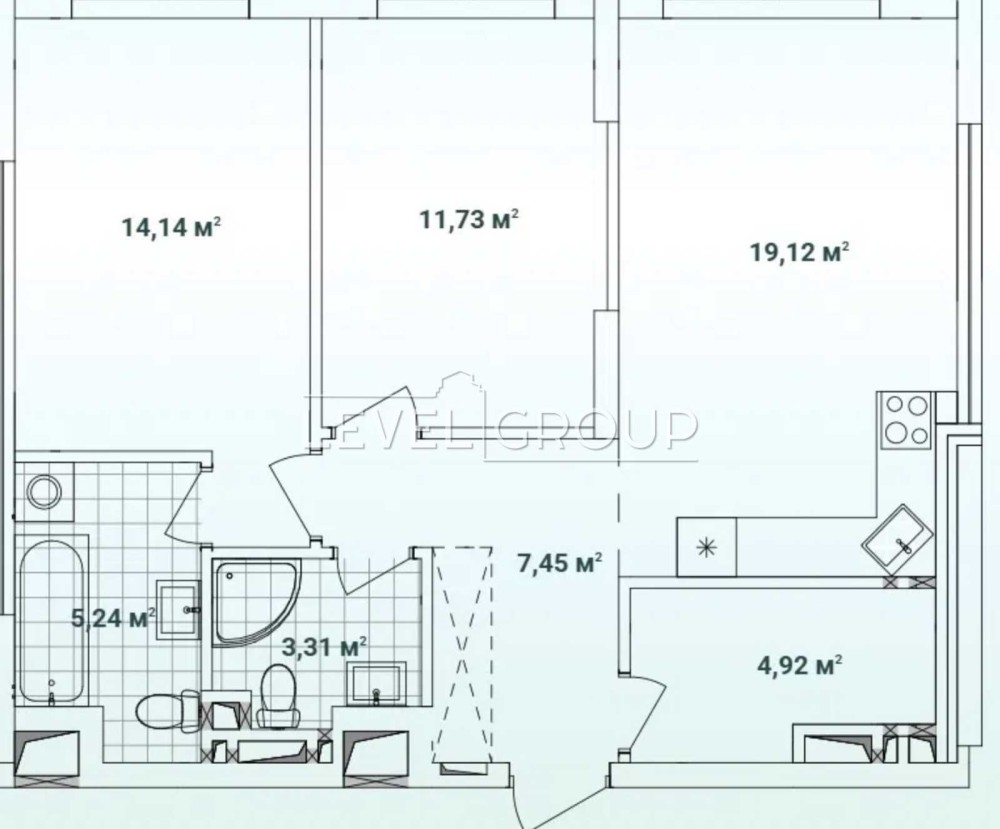
  • Загальна площа 66 м2
  • Площа кухні 19 м2
  • Поверх 15 
  • Поверховість 21 
  • Ремонт Після будівельників 
  • Планування Роздільна 
  • Тип стін Монолітний 
Опис
Продаж 2-кімнатної квартири в сучасному житловому комплексі ЖК Варшавський 3.

Загальна площа — 66 м²
Поверх — 15 з 16
Будинок — 10.7
Планування — функціональне, з можливістю зручного зонування
Вікна виходять у двір, без шуму з дороги

Будинок із резервним живленням — працюють ліфти, вода та освітлення у разі відключень.

Сучасний комплекс із розвиненою інфраструктурою: магазини, кав’ярні, школи, дитячі садки, зручна транспортна розв’язка.

Підійде як для власного проживання, так і для інвестиції.
Телефонуйте для деталей.
213-231-554
Зворотній зв’язок
Ігор
онлайн
Схожі оголошення
Видова квартира на Дніпро ЖК Грейт Дніпровська набережна 15-Є, Київ Київ 18
  • Двокімнатна
  • 77 м2
  • 22 / 26 пов.
130 900 $
Пропонується до продажу видова квартира на Дніпро ЖК Грейт Дніпровська набережна 15-Є – ідеальний вибір для тих, хто цінує комфорт, світло та сучасний стиль життя. Квартира розташована на 22-му поверсі 26-поверхового будинку, що відкриває неперевершену панораму на Дніпро та правий берег Києва. Завдяки великим панорамним вікнам від підлоги до стелі помешкання наповнене сонячним світлом упродовж дня. Характеристики квартири: – Загальна площа: 77 м2 – Житлова: 30 м2 – Простора кухня: 19.7 м2 – Два санвузли (гостьовий – 1.7 м2, господарський – 6.6 м2) – Велика лоджія – 5.4 м2 – Є паркомісце у паркінгу (не входить у вартість) – Одностороннє планування, сучасний комфорт Особливості комплексу ЖК Great: – Підземний паркінг, ліфт з доступом безпосередньо в паркінг – Цілодобова охорона та відеонагляд – Просторий внутрішній двір без авто, з дитячими та спортивними майданчиками – Зелені зони для відпочинку та доріжки для прогулянок ЖК Great знаходиться у престижному районі Києва – на Осокорках, з розвиненою інфраструктурою та зручним транспортним сполученням. Поруч – магазини, ресторани, ТРЦ, школи та садочки. Видова квартира на Дніпро ЖК Грейт Дніпровська набережна 15-Є – ідеальне поєднання панорамних краєвидів, сучасного житла та високого рівня безпеки.
Київ, Дарницький, Осокорки
Дворівнева квартира з терасою та видом на Дніпро ЖК Seven Осокорки Київ 19
  • Чотирикімнатна
  • 139 м2
  • 25 / 26 пов.
222 500 $
Пропонується дворівнева квартира з терасою та видом на Дніпро ЖК Seven Осокорки — унікальний варіант для тих, хто цінує простір, комфорт і панорамні краєвиди столиці. Квартира розташована на 25–26 поверхах 26-поверхового будинку за адресою: Дніпровська набережна, 20А. Загальна площа — 139 м2, житлова — 63 м2. Це простір, створений для великої та щасливої родини. Перший рівень: – просторий хол — 9 м2; – кухня-вітальня — 44 м2 із панорамними вікнами від підлоги до стелі, звідки відкривається захопливий вид на Дніпро; – гостьовий санвузол — 1, 5 м2. Другий рівень: – три спальні: 10, 5 м2, 18 м2 та 23 м2 — кожна з виходом на терасу; – гардеробна — 8 м2; – просторий санвузол — 8, 8 м2; – головна перевага — тераса 35 м2 з панорамним видом на Дніпро та зелені пагорби Києва. Це місце для ранкової кави, вечірніх посиденьок і затишних зустрічей. Квартира світла, сонячна, з великими вікнами та сучасним плануванням. Інфраструктура ЖК Seven: Комплекс закритого типу з цілодобовою охороною та підземним паркінгом. Усередині — затишний двір із дитячими та спортивними майданчиками, зеленою зоною та доріжками для прогулянок. У пішій доступності: ТЦ River Mall, ТЦ Аркадія, супермаркети Novus і Сільпо, ресторани, набережна Дніпра. Зручна транспортна розв’язка та близькість метро Осокорки роблять локацію ще привабливішою. Чому варто обрати саме цю квартиру? – дворівневе планування з чітким розділенням на зони; – простора кухня-вітальня для зустрічей і свят; – велика тераса з панорамою на Дніпро й Київ; – сучасний ЖК з продуманою інфраструктурою. Дворівнева квартира з терасою та видом на Дніпро ЖК Seven Осокорки – не просто квадратні метри — це простір для життя, відпочинку й натхнення. Не втрачайте шанс — такі квартири в ЖК Seven з’являються рідко!
Київ, Дарницький, Осокорки
Дворівнева квартира 222м2 на Микільсько-слобідській 4Д, вид на Дніпро, Київ - мрія великої родини! Київ 19
  • Чотирикімнатна
  • 222 м2
  • 10 / 11 пов.
450 000 $
БЕЗ% для покупця! Адреса: м. Київ, вул. Микільсько-Слобідська, 4д Площа: 222 м² Поверх: 10-11/11 цегляного будинку Кількість санвузлів: 3 Окремих спален: 5 Ця квартира створена для великої, веселої та люблячої родини, де завжди звучить дитячий сміх і пахне свіжою випічкою. З вікон - величний краєвид на Дніпро, зелені острови й панораму Києва, яка вражає з кожного рівня, з кожної кімнати. Перший рівень - простір для життя, тепла та зустрічей: - Вітальня 24м2 - затишне місце для душевних розмов та сімейних вечорів - Кухня-столова 34м2 - серце дому, де за великим столом збираються всі: батьки, діти, друзі, навіть домашній улюбленець має своє місце - Гостьовий санвузол 2м2 - Балкон з краєвидом на Дніпро та величний Київ Це місце для сімейних свят, зустрічей гостей, перегляду матчів улюбленої команди й теплих вечорів з чашкою чаю. Другий рівень — територія спокою, сну і дитинства: 5 окремих кімнат:   - 4 дитячі - кожна з індивідуальним характером, кольорами та простором для фантазії   - 1 спальня для батьків - місце сили, відпочинку та любові - 2 просторі санвузли по 6м2 - для зручності обох "крил" квартири - Ігрова зона - справжній острів радості для дітей і їхніх друзів, де можна сміятись, вигадувати і творити, не заважаючи дорослим - 2 балкони з яких відкривається вид, який не обридне ніколи. Київ як на долоні, блискучий Дніпро, зелені острови, мости, вечірні вогні… У квартирі панує атмосфера тепла й гармонії. Вона наповнена світлом, фарбами, ніжністю та простором для дитячих спогадів. Саме тут хочеться народитися, вирости, навчитися любити життя - і повертатися завжди. І звісно, у цьому домі знайдеться місце для вашого пухнастого друга - він теж буде щасливий. Ідеальне розташування: Житловий комплекс біля Дніпра, поряд з набережною, парками, школами, садочками, супермаркетами й метро. Ця квартира - не просто квадратні метри. Це історія родини, що чекає на новий щасливий початок.
Київ, Дніпровський, Лівобережний
онлайн
Ігор
На сайті з 16 квітня 2020