1  / 1
Продам шикарну 3к квартиру біля ОЗЕРА_Дизайн_Ремонт_Чорнові роботи. - фото 1

Продам шикарну 3к квартиру біля ОЗЕРА_Дизайн_Ремонт_Чорнові роботи.

Івано-Франківськ

Поскаржитись
115 000 $
0 переглядів оголошення | 0 сьогодні
Додано: 17 лютого 2026, ID: 4756776
Характеристики
  • Без комісії Так 
  • Кімнат
  • Загальна площа 96 м2
  • Площа кухні 20 м2
  • Поверх
  • Поверховість 10 
  • Ремонт Під чистове оздоблення 
  • Планування Роздільна 
  • Тип стін Цегляний 
  • Комфорт Кондиционер, Гардероб, Панорамные окна, Гостевой паркинг, Подземный паркинг, Гараж, Лифт 
  • Коммуникации Газ, Центральный водопровод, Электричество, Центральная канализация, Вывоз отходов, Асфальтированная дорога 
Опис
Продається шикарна квартира в Житловому Комплексі який розташований на березі міського озера в м.Івано-Франківськ

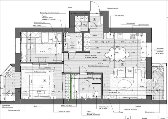
Квартира з продуманим плануванням у сучасному житловому комплексі Івано-Франківська — ідеальний варіант для сім’ї, яка хоче одразу перейти до фінального ремонту за готовим дизайн-проєктом.

Квартира має функціональне планування: велика кухня-вітальня з обідньою зоною, окрема спальня, дитяча кімната, гардеробні та достатньо місць для зберігання. Простір грамотно зонований, що забезпечує комфортне проживання для всієї родини. Панорамні вікна та продумане розташування кімнат роблять квартиру світлою та затишною.

У квартирі вже виконано важливий обсяг чорнових робіт:
• змонтовані системи вентиляції та кондиціонування
• виконана електрика з детальним продуманим розведенням
• підготовлені стіни (сітка + клей та інші роботи)
• готовий детальний дизайн-проєкт, який передається новим власникам у подарунок

Будинок розташований у сучасному комплексі з якісним будівництвом, доглянутою територією, зручними під’їздами та розвиненою інфраструктурою поруч: магазини, школи, дитячі садки, зони відпочинку та швидке сполучення з центром міста.

Додатково є можливість придбати просторий гараж площею 35 м² із можливістю зарядки електромобіля (за окрему оплату).

Квартира стане чудовою інвестицією та дозволить суттєво зекономити час і кошти на стартових етапах ремонту.
Зворотній зв’язок
Менеджер компанії Микола
офлайн
Схожі оголошення
Продаж 2-кімнатної квартири. м. Львів, вул. Талліннська, 14 (Левандівка) Львів 10
  • Двокімнатна
  • 42.9 м2
  • 2 / 2 пов.
45 000 $
Продаж 2-кімнатної квартири. м. Львів, вул. Талліннська, 14 (Левандівка) Пропонується комфортна 2-кімнатна квартира на 2-му поверсі малоквартирного будинку, ідеальна для життя або інвестиції під оренду. Основні характеристики: ▪ Загальна площа — 42,9 м² ▪ Житлова площа — 23 м² ▪ Кімната 1 — 15,3 м² ▪ Кімната 2 — 7,7 м² ▪ Санвузол — 3,3 м² ▪ Балкон — 0,6 м² ▪ Кухня-студія — 16 м² ▪ Висота стель — 2,35 м Технічне оснащення: ✔ Опалення — газовий конвектор ✔ Підігрів води — бойлер ✔ Світла, затишна квартира Переваги: ✅ Малоквартирний будинок — менше сусідів, комфорт і тиша ✅ Функціональне планування, кухня-студія ✅ Ідеально для молодої сім’ї або для здачі в оренду ???? Вартість: 45 000 $
Львів, Залізничний
Продаж 2-кімнатної дворівневої квартири у самому центрі міста — елітний район. Львів, вул. Огієнка, Львів 20
  • Двокімнатна
  • 68.4 м2
  • 1 / 2 пов.
125 000 $
Продаж 2-кімнатної дворівневої квартири у самому центрі міста — елітний район. Львів, вул. Огієнка, 11 Продається простора дворівнева квартира з окремим входом, розташована у добудові всередині австрійського будинку (2009 рік). Поєднання історичної архітектури та сучасного, якісного житла — рідкісний і дуже затребуваний формат у центрі міста. Квартира знаходиться в престижному та елітному районі Львова, де завжди стабільний попит на оренду та комфортне проживання. Загальна площа — 69,4 м² Житлова — 28,5 м² Кухня — 19,1 м² Висота стель — 2,86 м Планування: 1 рівень: ▪ коридор — 6,4 м² ▪ санвузол (ванна + туалет) — 4,5 м² ▪ простора кухня — 19,1 м² (меблі, газова плита, холодильник, телевізор, котел) 2 рівень: ▪ кімната — 18,2 м² ▪ кімната — 10,3 м² ▪ санвузол — 2,3 м² ▪ коридори — 7,2 м² Переваги квартири: ✔ добудова 2009 року в середині австрійського будинку ✔ окремий вхід ✔ індивідуальне газове опалення (двоконтурний котел Vaillant) ✔ цегляний будинок ✔ квартира повністю укомплектована меблями та технікою ✔ можна одразу заїжджати без додаткових витрат Локація: ✔ самий центр міста ✔ елітний, престижний район ✔ усе необхідне — у пішій доступності ✔ ідеальна локація як для життя, так і для орендного бізнесу ???? Вартість: 125 000 $
Львів, Галицький
Продається 1-кімнатна квартира в новобудові. Адреса: вул. Героїв Крут, 5 Львів 11
  • Однокімнатна
  • 42.05 м2
  • 6 / 7 пов.
63 000 $
Продається 1-кімнатна квартира в новобудові. Адреса: вул. Героїв Крут, 5 Характеристики: - Загальна площа: 42.05 кв.м -Житлова: 13.75кв.м - Кухня: 17,18 кв.м - Балкон: 3,9 кв.м - Гардероб: 3,38 кв.м - Коридор: 3.59 кв.м - Санвузол: 4.25 кв.м Переваги: - Зроблена стяжка, тепла підлога - Індивідуальне газове опалення - Проведені всі комунікації (світло, вода, газ) Будинок здається 1кв. 2026р. Продається по переуступці. ❗Вже йде оформлення права власності, починають робити ремонти❗ Ця квартира ідеальна для тих, хто цінує комфорт та сучасні умови проживання! Ціна: 63000$ Телефон: (066) 387-50-54
Львів, Сихівський
офлайн
Менеджер компанії Микола
На сайті з 16 квітня 2020