1  / 1
Продам простору 41 м.кв. квартиру без комісії. Під ключ 31 000$ - фото 1

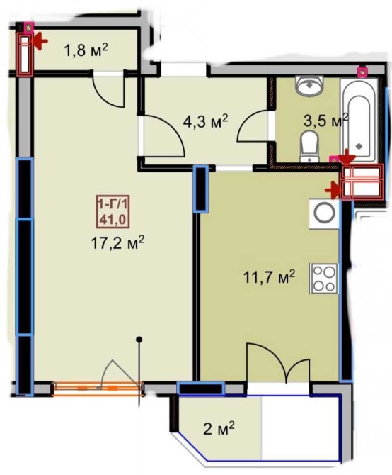
Продам простору 41 м.кв. квартиру без комісії. Під ключ 31 000$

Ірпінь

Поскаржитись
31 000 $
0 переглядів оголошення | 0 сьогодні
Додано: 2 листопада 2025, ID: 4446996
Характеристики
  • Без комісії Так 
  • Кімнат
  • Загальна площа 41 м2
  • Площа кухні 12 м2
  • Поверх
  • Поверховість 16 
  • Ремонт Після будівельників 
  • Тип стін Монолітний 
  • Опалення Власна котельня 
  • Комфорт Подземный паркинг 
  • Коммуникации Центральный водопровод, Электричество, Центральная канализация, Вывоз отходов, Асфальтированная дорога 
Опис
Продам інвестиційно привабливу квартиру без комісії для покупці в м. Ірпінь в новому сучасному ЖК
Поверх 2,10,11/16
Площа 41 м.кв.
Ціна 31000$ (756$ м.кв.)

Шикарна інвестиція
Наповнення:
- лазерна стяжка
- штукатурка
Ціна під ключ: 31 000$

Локація - найшвидший виїзд на Київ (7-10 хв)

Є підземні паркінги на 140 паркомісць
Є комерція

Наповнення: Штукатурка, стяжка, власна котельня (від забудовника).

Телефонуйте! Перспективна Інвестиція!
Зворотній зв’язок
Aнатолій
офлайн
Схожі оголошення
Продаж 2- к.квартири бул. Вацлава Гавела 83д Київ 8
  • Двокімнатна
  • 42.3 м2
  • 3 / 5 пов.
52 000 $
Продаж 2- к.квартири бул. Вацлава Гавела 83д. Поруч сквер, парк Відрадний, дві школи, два дитячих садочка, швидкісний трамвай та залізнична станція. АТБ, Фора. Квартира потребує ремонту. Санвузол суміжний. Система опалення централізована. 044 200 10 80
Київ, Солом'янський
Продаж 3-к квартири вул. Академіка Шалімова 36/1 Київ 4
  • Трикімнатна
  • 55 м2
  • 5 / 5 пов.
70 000 $
Продаж 3-к квартири вул. Академіка Шалімова 36/1. Підлога (покриття): паркетна дошка та лінолеум. Внутрішнє оздоблення: шпалери Санвузол роздільний. Тип двору- внутрішній. 044 200 10 80
Київ, Солом'янський
Продаж 1-к квартири вул. Віктора Ярмоли 38 Київ 4
  • Однокімнатна
  • 32 м2
  • 1 / 5 пов.
57 773 $
Продаж 1-к квартири вул. Віктора Ярмоли 38. Товщина зовнішніх стін - 80см, високі стелі. Квартира після капітального ремонту (заміна труб по стояку, газовідвід, електрика, ВСЯ сантехніка, узаконене перепланування з розширенням). Сучасні меблі та техніка: італійський гідромасаж, тепла підлога, бойлер, охорона. Є своє паркомісце (під вікном). 044 200 10 80
Київ, Солом'янський
офлайн
Aнатолій
На сайті з 16 квітня 2020