1  / 1
Продам 2к,Діброва Парк.введений - фото 1

Продам 2к,Діброва Парк.введений

Київ, Подільський

Поскаржитись
85 000 $
0 переглядів оголошення | 0 сьогодні
Додано: 16 листопада 2025, ID: 4499407
Характеристики
  • Без комісії Ні 
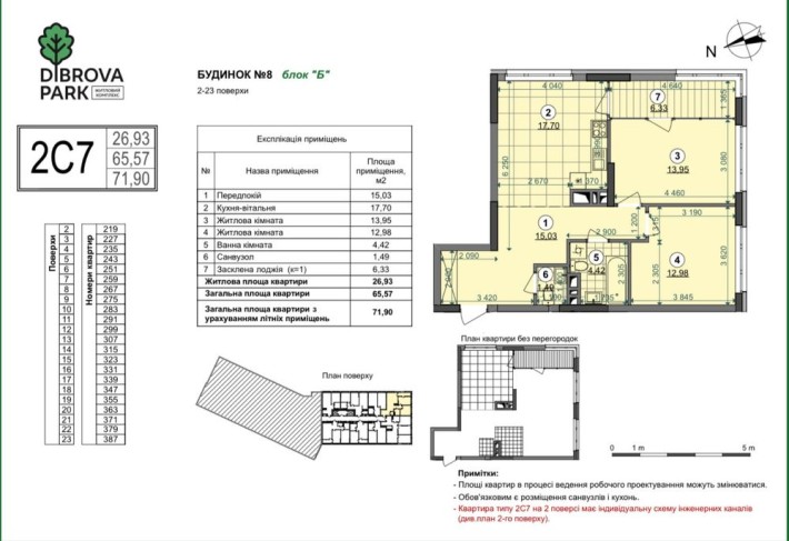
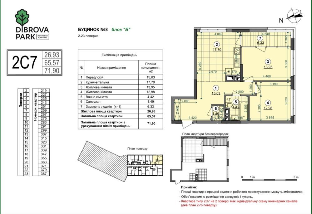
  • Кімнат
  • Загальна площа 72 м2
  • Площа кухні 18 м2
  • Поверх 19 
  • Поверховість 23 
Опис
ЖК Діброва Парк, Dibrova Park

Будинок 9 введено .
Планування 2с7
Поверх 19
Ціна 85000
Південно-східна сторона . Вид у двір на алеї
Зручне планування з просторими кімнатами, функціональний коридор під шафи.

Багато варіантів , звертайтесь. також запрошую на перегляд -підберем Вам варіант .
Зворотній зв’язок
Ігор Діброва Парк
офлайн
Схожі оголошення
1 ком-я возле Метро Лыбидская ул.Остапа Вишни №7 Київ 13
  • Однокімнатна
  • 30 м2
  • 2 / 5 пов.
45 000 $
Продам 1 ком-ю квартиру возле Метро Лыбидская на ул. Вишни Остапа №7 , Печерский р-н . 2/5 эт ( кирпичный дом 1968 г). Площадь 27/15/6 кв.м. Квартира в хорошем жилом состоянии , окна выходят на улицу ,сан узел совместно . Стоят метало-пластиковые окна ,паркет на полу, броне дверь , балкон не застеклен . Рядом Супермаркет , рынок , садик , школа, поликлиника , парк, озеро ,Метро Лыбидская и Зверинецкая до 10 минут пешком . Есть дополнительно помещение (кладовка) в подвале , приватизированы 8 кв.м . Стоимость 45 000 у.е. Александр 095 553 2058 , 097 910 8458 , 093 118 1193
Київ, Печерський
1 ком в г.Вышгород , ул.Кургузова №1А Київ 14
  • Однокімнатна
  • 43 м2
  • 6 / 20 пов.
41 000 $
Продаж 1к квартири на вул. Кургузова, 1А, корп. 2, м. Вишгород Площа 42,9/18/9,8 м2. Поверх 6/20 поверхового будинку Світла видова затишна квартира, біля лісу. Консьєрж, три ліфти. Меблі та техника залишаються (Частково) Будинок утеплений сучасним термоізоляційним матеріалом, Сучасні кухонні меблі, шафа-купе, лоджія засклена. Гаряча вода - електричний бойлер. Опалення центральне. Встановлений квартирний лічильник тепла. Сплата по квитанціям за лютий склала 1500 грн. Є спільний коридор на 2 квартири площею 20 кв. м. Автопарковка біля будинку. Розвинута інфраструктура, все в пішій доступності (до 10 хвилин) : дитсадок, школа, супермаркет, банки, пошта, поліклініка. Біля ЖК - кінцева маршрутки 396 ( Вишгород - Почайна) До метро Оболонь та Почайна до 15 хв. їзди. Повний юридичний супровід. Дзвоніть, відповімо на ваші запитання. Вартысть 41 000 у.е. Олександр 097 910 8458 , 095 553 2058
Київ, Оболонський, Вышгород
2 кім на вул. Луценко №9-А, Метро Іподром Київ 19
  • Двокімнатна
  • 51 м2
  • 1 / 9 пов.
64 000 $
Пропонується продаж 2-кімнатн. квартири у місті Києві, Голосіївський район, Теремки-2 , по вулиці Дмитра Луценко 9-А, 51/30/7, у пішої доступності до трьох станцій метро « Іподром»,»Теремки»,»Виставковий центр «. Квартира знаходиться на першому поверсі/ девʼяти поверхового будинку, дуже тепла в зимку, т, як подача тепла знизу до верху, є свій підвал , на вікнах є грати, металопластикові вікна, паркет, кімнати та санвузол окремо, замінені труби, лічильники на воду та електрику, тамбур на дві квартири, вікна виходять у двір! Відмінна інфраструктура, поруч метро, дитячий садок, школа, «Республіка “,»Новус» “АТБ», зупинка громадського транспорту, стадіон, пошта та все інше для комфортного проживання! Ніхто не зареєстрований, власник у Києві. Телефонуйте, надам більше інформації. Запрошуємо на перегляд! Вартість 64 000 у.е. Олександр 097 910 8458 , 095 553 2058
Київ, Голосіївський, Теремки 2
офлайн
Ігор Діброва Парк
На сайті з 16 квітня 2020