1  / 1
Продам 2 кім Варшавский Виговського  Варшавський 3 Буд 10.10 - фото 1

Продам 2 кім Варшавский Виговського Варшавський 3 Буд 10.10

Київ, Подільський

Поскаржитись
85 500 $
0 переглядів оголошення | 0 сьогодні
Додано: 16 листопада 2025, ID: 4498758
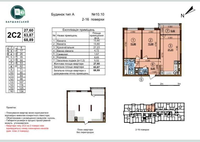
Характеристики
  • Без комісії Ні 
  • Кімнат
  • Загальна площа 69 м2
  • Площа кухні 21 м2
  • Поверх 10 
  • Поверховість 16 
  • Ремонт Після будівельників 
  • Планування Роздільна 
Опис
ЖК Варшавський 3

буд 10.10
поверх 10
площа 69 м2

Переуступка
Комісія АН 2%

Пропонуємо Вам квартиру з функціональним плануванням, яка складається з кухні-вітальні , окремих двох кімнат та два санвузла. Це ідеальний варіант для тих, хто шукає комфортне та просторе житло з можливістю організувати простір за власним смаком.

Квартира розташована у новобудові та знаходиться у стані після будівельників, що дозволить вам самостійно облаштувати її за своїми потребами та вподобаннями. В квартирі встановлені лічильники на електроенергію та воду,

На території житлового комплексу розташовані різноманітні інфраструктурні об'єкти, які зроблять ваше життя більш комфортним та зручним.

Все готово до угоди!

Допоможемо придбати і продати нерухомість.

По додатковим питанням телефонуйте.
Зворотній зв’язок
Тетяна
офлайн
Схожі оголошення
Продаж 1-к.кв-ри під комерцію або житло по вул. Одеській. Привокзальна Львів 16
  • Однокімнатна
  • 20 м2
  • 1 / 3 пов.
33 000 $
Продаж 1-кім.кв-ри під комерцію або житло по вул. Одеській (Привокзальна). Дуже хороша локація, неподалік залізничний вокзал, Привокзальний ринок, недалеко до центру. Зараз по документах житловий фонд. Загальна площа 20 кв.м + під кухньою є підвал 7 м.кв, який можна об'єднати. Вхід в квартиру є із фасаду будинку, тому добре підійде для магазину, офісу, салону та іншого. У підвалі є виведена каналізація та підведена вода. Ціна 33000$, без торгу! Тел: ⓿❻❼❸❼⓿❼❺❸❸ або ⓿❾❺❻❼❾❾❺❷❸
Львів, Залізничний
Продаж 1К квартири в ЖК Welcome Home вулиця Стеценка 75 Київ 5
  • Однокімнатна
  • 54 м2
  • 1 / 1 пов.
51 000 $
Продаж 1К квартири в ЖК Welcome Home вулиця Стеценка 75 Будинок 11 Площа 48.54 м2 Висота стелі 2.7м Поверх 1/6 Просторі кімнати, не межує з ліфтом Лічильники на опалення, воду, електроенергію, встановлені опалювальні прилади (радіатори), влаштована гідроізоляція підлоги в санвузлах Будинок Введено в експлуатацію - Газоблок, в квартирі 1 кімната. Планування кімнат Роздільне. Загальний стан квартири - Від будівельників вільне планування. Працює без світла - опалення 044 200 10 80
Київ, Святошинський
Продаж 1-к квартири вул. Загорівська (Багговутівська) 25 Шевченківський район Київ 5
  • Однокімнатна
  • 47 м2
  • 19 / 25 пов.
70 000 $
Продаж однокімнатної квартири. Простора 1-кімнатна квартира в сучасному житловому комплексі ЖК Багговутівський, побудованому за монолітно-каркасною технологією. Будинок введений в експлуатацію у 2021 році, клас комфорт. Основні характеристики: Стан від забудовника: чистове стягування підлоги, встановлені радіатори, лічильники на воду, електроенергію та опалення, вхідні металеві двері; Висота стелі 2, 7 м; Засклений балкон; Панорамні металопластикові вікна з енергозберігаючими склопакетами; Автономне опалення (власна котельня); Централізоване водопостачання та електроенергія. З квартирою (ціна окремо) продається комора 4м2 на цьому поверсі. Вона також у приватній власності. 044 200 10 80
Київ, Шевченківський
офлайн
Тетяна
На сайті з 16 квітня 2020