1  / 3
Оренда приміщення від власника ТЦ МЕТРО м. Львів, Городоцька , 300 - фото 1
Оренда приміщення від власника ТЦ МЕТРО м. Львів, Городоцька , 300 - фото 2
Оренда приміщення від власника ТЦ МЕТРО м. Львів, Городоцька , 300 - фото 3

Оренда приміщення від власника ТЦ МЕТРО м. Львів, Городоцька , 300

Львів, Залізничний

Поскаржитись
10 161.42 грн.
978 грн. за м²
0 переглядів оголошення | 0 сьогодні
Додано: 17 січня 2026, ID: 4677666
Характеристики
  • Расположение в жилой доме 
  • Общая площадь 10.39 м2
  • Этаж
  • Этажность
  • Ремонт Ні 
  • Ні 
  • Коммуникации Центральный водопровод, Электричество, Канализация септик, Вывоз отходов, Асфальтированная дорога 
Опис
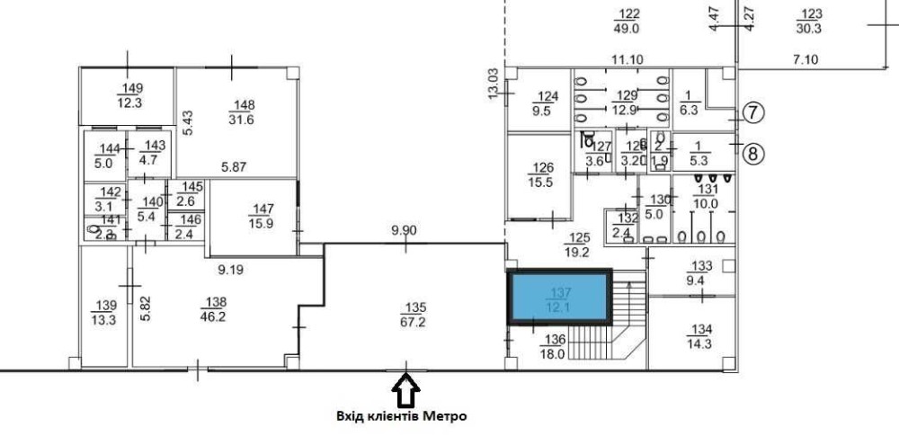
Оренда приміщення від власника для рітейлу, шоуруму, магазин, подарункову крамницю, офіс, сервіс або продаж електроінструментів за адресою: м. Львів, Городоцька , 300, ТЦ METRO, 1 поверх, центральний вхід.

Характеристики:
• Площа — 10,39 м²
• 1 поверх, центральний вхід
• Встановлений кондиціонер (працює на охолодження)
• Вхідна потужність електроенергії— 2 кВт (є можливість збільшення до 4 кВт)
• Потрібне встановлення окремого електролічильника
• Підключення до генератора — за домовленістю.
• Можливість вивести вологу точку за потреби.
• Санвузол спільний
• Висота стель — 2,80 – 2,00 м
• Високий пішохідний та автомобільний трафік
• Парковка поруч із ТЦ

Орендна ставка - 690 грн. + ПДВ/м2/міс
ОРЕХ - 125 грн.+ ПДВ/м2/міс
Щорічна індексація ставок – 10%
Комунальні платежі – по лічильнику
Забезпечувальний платіж – 2 місяці (оренда + ОРЕХ по ставкам останнього року)
Орендні канікули на термін на адаптацію – до обговорення (в цей період сплачуються ОРЕХ та комунальні послуги та 5% від орендної ставки).
Зворотній зв’язок
Світлана
офлайн
Схожі оголошення
Здаєтьмя капітальне приміщення з рампою Біла Церква 5
    37 000 грн.
    Здається в оренду капітальне приміщення в м. Біла Церква по вул. Сквирське шосе загальною площею 380. м, склад Сухий, рівна підлога. з рампою. Хороший асфальтований '. Закрита територія. Також є приміщення 600. м з рампою . + офісні приміщення .
    Біла Церква
    Офісні приміщення від 36 кв. до 476 в індустріальному парку «КИТ» Буча 14
      300 грн.
      Офісні приміщення від 36 кв. до 476 в індустріальному парку «КИТ» Пропонуємо до Вашої уваги комфортний для бізнесу офіс у в новому індустріальному парку «КИТ» Здаються в довгострокову оренду офісні приміщення від 36 до 476 кв.м., які розташовані на третьому поверсі. Розташування: виробничий комплекс класу «В+», поєднаний з адміністративно-побутовим корпусом, розташований у західній частині м. Буча, з виїздом на автошлях М07 Київ-Ковель («Варшавка»). Також, на відстані 14 км від території парку виїзд на автошлях Е40 та на відстані 10 км знаходиться виїзд на Велику Кільцеву дорогу (н.п. Микуличі), яку планують незабаром побудувати. Поруч знаходиться Епіцентр, ТЦ Ритейл Парк Буча. Вдала транспортна розв'язка, паркова зона, паркінг для вас та ваших гостей, презентабельна гостьова група, цілодобова охорона, поверхова система відеоспостереження, швидкісний інтернет від двох провідних провайдерів, домашня кав'ярня, відділення нової пошти та бізнес-сусідство – сприятливі умови для роботи та творчості. Кабінети світлі, є із зонуванням, оснащені опаленням (радіатори), кондиціонерами. Сучасний ремонт. Ціна – від 300 грн/м2 + комунальні платежі +експлуатаційні з урахуванням ПДВ. Крім цього, є вільні складські приміщення різної квадратури від 234 до 2490 кв. м.
      Буча
      Орендуйте нове приміщення в індустріальному парку «КИТ» Буча від 234 до 3490 кв. м. Буча 12
        180 грн.
        Орендуйте нове приміщення в індустріальному парку «КИТ» Буча від 234 до 3490 кв. м. Пропонуємо Вам розглянути для розширення Вашого бізнесу оренду виробничих приміщень від 234 кв. м. в новому індустріальному парку «КИТ» Взяв в оренду приміщення в індустріальному парку «КИТ» ви отримуєте податкові пільги: -18% звільнення від податку на прибуток; -10% звільнення від мита на ввіз устаткування; -20% звільнення від сплати ПДВ при імпорті устаткування; - 100% компенсація ставки за кредитами. Розташування: виробничий комплекс класу «В+», поєднаний з адміністративно-побутовим корпусом, розташований у західній частині м. Буча, з виїздом на автошлях М07 Київ-Ковель («Варшавка»). Також, на відстані 14 км від території парку виїзд на автошлях Е40 та на відстані 10 км знаходиться виїзд на Велику Кільцеву дорогу (н.п. Микуличі), яку планують незабаром побудувати. Поруч знаходиться Епіцентр, ТЦ Ритейл Парк Буча. Характеристики комплексу: Дворівневий корпус загальною площею 10000 м 2. Офісна частина складає 1800 кв.м. Відсіки обладнані автоматичними підйомними воротами 3х4 м. Зручна рампа з навісом, розташована по всій довжині фасаду та індивідуальні ворота кожного відсіку забезпечують можливість завантаження/розвантаження кількох машин одночасно. Майданчик перед рампою дозволяє виконувати маневрові роботи та подачу довгомірного транспорту під завантаження. Висота стель виробничого корпусу 1-й поверх – від 5,8 до 8 метрів, Корисне навантаження на підлогу - 5т/м 2. Підлога - монолітна з знепилюючим зміцнюючим покриттям. Крок колон 6*9 м. Частину приміщень можна обладнати стелажами висотного зберігання за замовленою комплектацією. Висота стель виробничого корпусу 2-й поверх – 5,8 метрів, Корисне навантаження на підлогу - 3т/м 2. Підлога - монолітна з знепилюючим зміцнюючим покриттям. Крок колон 6*9 м. Є можливість підйомниками 3т піднімати вантаж прямо з рампи в склад. (4 штуки) Виробничий комплекс обладнаний найсучаснішими інженерними системами: системою протипожежної безпеки, системою відеоспостереження, На огородженій території розташовується також власна електрична підстанція та власна газова котельня. На огородженій території передбачені місця для стоянки вантажних та легкових автомобілів, цілодобова власна охорона, відеоспостереження, датчики периметрального контролю. Виробничі приміщення мають показники високої категорії по пожежонебезпечності. Офісні приміщення пропонуються з якісним оздобленням. Комплекс дозволяє розміщувати на зберігання товари та вантажі будь-якого виду, починаючи від продуктів харчування та закінчуючи промисловим обладнанням. Ми готові до співпраці як з приватними особами, так і великими клієнтами. Для невеликих компаній ми також готові надати вигідні умови зберігання вантажів. Висока кваліфікація персоналу, цілодобова охорона та зручні під'їзні шляхи, все це дозволяє нам надавати складські послуги на найвищому рівні. Що отримає виробник в індустріальному парку: - Податкові пільги - Доступ до кваліфікованих кадрів та фінансування; - Інфраструктуру високого рівня з відділенням Нової пошти, кафе, та іншими об’єктами для комфорту роботи та ефективного ведення бізнесу. Пропонуються такі площі: - 1 поверх від 235 до 2600 кв. м.; -2 поверх від 234 до 1180 кв. м.; - офісні приміщення від 36 до 476 кв. м.; Вартість оренди від 180 грн./кв.м. з ПДВ + ОПЕКС Крім того, ми можемо на території індустріального парку побудувати під замовлення будь яке приміщення для виробництва або складського зберігання від 4000 кв. м.
        Буча
        офлайн
        Світлана
        На сайті з 16 квітня 2020