1  / 3
Двоповерховий житловий будинок та 10 соток землі riviera club - фото 1
Двоповерховий житловий будинок та 10 соток землі riviera club - фото 2
Двоповерховий житловий будинок та 10 соток землі riviera club - фото 3

Двоповерховий житловий будинок та 10 соток землі riviera club

Вишеньки

Поскаржитись
199 000 $
0 переглядів оголошення | 0 сьогодні
Додано: 11 листопада 2025, ID: 4476679
Характеристики
  • Без комісії Так 
  • Кімнат
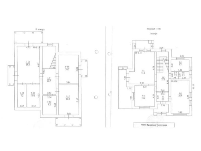
  • Загальна площа 239.4 м2
  • Поверховість
  • Площа ділянки 10 сот.
Опис
Пропонується двоповерховий будинок загальною площею 239,4 кв.м.,та земельна ділянка під ним 10 соток, будинок в сучасному стилі і гарним плануванням. Будинок без ремонту, щоб новий власник мав можливість зробити дизайн і ремонт своєї мрії. Riviera club - котеджне містечко Вашої мрії! Zoloche school Ресторан Готель і спа Яхт-клуб
Зворотній зв’язок
Виталий
офлайн
Схожі оголошення
Дом в с.Заболотье, Шосткинский район Шостка 20
  • Двокімнатна
  • 50 м2
  • 15 соток
15 000 грн.
Дом в с.Заболотье, Шосткинский район. Общий вид с огорода (фото 1) Слева деревянный сарай ~ 24м2 (фото 2) Возле сарая погреб (фото 3) Летняя кухня ~ 10м2 (фото 4) Возле летней кухни есть скважина под глубинный насос (фото 5) Жилой дом ~ 50м2 (фото 6) Прихожая (фото 7-8) Коридор (фото 9) По коридора прямо сразу веранда (фото 10-11) Налево по коридору проходная комната с половиной грубки, двумя столами и счетчиком электроэнергии (фото 12-15), дальше комната со второй половиной грубки (фото 16-19) Направо по коридору кухня с печкой и лежаком (фото 20) Пол везде хороший. Долгов нет. Есть сад и плодовые деревья. Состояние все на фото.
Шостка
Продам будинок Стиль фьюжн Меблі Техніка Ландшафтний дизайн Перемога-6 Дніпро 20
  • Чотирикімнатна
  • 257 м2
  • 18 соток
310 000 $
Продам будинок на березі р. Дніпро, в межах міста (р-н ж/м Перемога- 6, яхт-клуб). Будинок збудований у романтичному стилі фьюжн, на ділянці з чудовим ландшафтним дизайном, з рідкісними рослинами, ділянка 18 с. приватизована. Будинок повністю облаштований якісними меблями та технікою відомих європейських брендів. Всі меблі, техніка, предмети інтер'єру залишаються. Будинок спланований для комфортного проживання та затишку. Велика вітальня складається і обідньої, камінної та вхідної групи. Із вітальні є два виходи на вуличну терасу. На території також є басейн з розсувною алюмінієвою системою закривання, літня альтанка, сауна, що окремо стоїть, критий навіс на три авто, господарські споруди. 2 види опалення : електричне і газове. Електрика 380V, Газ, інтернет
Дніпро, Соборний
3-к будинок Дніпро, Соборний, 70000 $ Дніпро 12
  • Трикімнатна
  • 311 м2
  • 2.8 сотки
70 000 $
Продам окремий будинок район ж/м Перемога вул Переяславська Загальна площа 311м2,під ремонт. Земля приватизована 2.8 сотки. Заїзд у двір на 4 авто, гараж, центральна каналізація, газ, газовая колонка ,світло 380v, вода, газовий котел. Ніхто не прописаний. Документи готові. Готові до швидкої угоди будинок, стіни: силікатна цегла; житлових повірхів: 2; ділянка: 2.8 сот.
Дніпро
офлайн
Виталий
На сайті з 16 квітня 2020