1  / 6
Двокімнатна квартира з котлом, штукатуркою та власною терасою! - фото 1
Двокімнатна квартира з котлом, штукатуркою та власною терасою! - фото 2
Двокімнатна квартира з котлом, штукатуркою та власною терасою! - фото 3
Двокімнатна квартира з котлом, штукатуркою та власною терасою! - фото 4
Двокімнатна квартира з котлом, штукатуркою та власною терасою! - фото 5
Двокімнатна квартира з котлом, штукатуркою та власною терасою! - фото 6

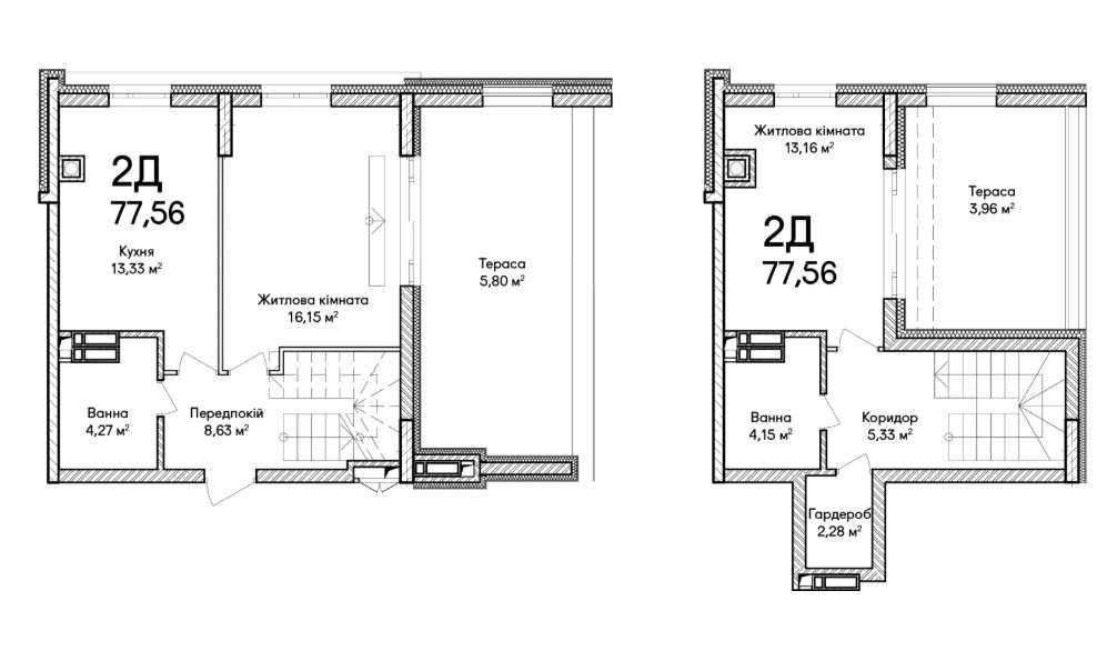
Двокімнатна квартира з котлом, штукатуркою та власною терасою!

Ірпінь

Поскаржитись
3 490 200 грн.
0 переглядів оголошення | 0 сьогодні
Додано: 6 січня 2026, ID: 4637157
Характеристики
  • Без комісії Так 
  • Кімнат
  • Загальна площа 77.56 м2
  • Площа кухні 13 м2
  • Поверх
  • Поверховість 10 
  • Планування Багаторівнева 
  • Комфорт Терраса, Панорамные окна, Видеонаблюдение, Парковочное место, Лифт, Грузовой лифт, Автономный электрогенератор 
  • Коммуникации Газ, Центральный водопровод, Электричество, Центральная канализация, Вывоз отходов, Асфальтированная дорога 
Опис
Двокімнатна квартира з котлом, штукатуркою та власною терасою!

Площа: 77.56 м²

Переваги квартири:

Просторе планування із зручною логікою зонування — ідеально для родини;

Власна тераса для відпочинку, сніданків на свіжому повітрі чи облаштування зеленої лаунж-зони;

Індивідуальний газовий котел — комфорт і економія на опаленні;

Стіни під штукатурку — готуйте під ремонт на свій смак;

Будинок із утепленням, ліфтами Otis, сучасним фасадом та благоустроєм.

Синергія Сіті — простір для життя:

Двори без авто, дитячі та спортивні майданчики;

Магазини, кав’ярні, пекарні та Синергія Хаб поруч;

Поряд — зелений променад і набережна для прогулянок;

Велика 2-кімнатна з терасою у зданому будинку — лише 43 000 грн/м²!

Ідеальний варіант для тих, хто цінує простір, комфорт і сучасну архітектуру.

Деталі по номеру:
3 8 0 9 5 5 3 2 9 3 5 2
Зворотній зв’язок
Альона
офлайн
Схожі оголошення
Продам 3-кімн. чешку 5/5 на вул. Каштанова Кривий Ріг 4
  • Трикімнатна
  • 64 м2
  • 5 / 5 пов.
11 500 $
Продамо 3-кімнатну квартиру (чешка) 5/5-пов. на вул. Каштановій, будинок 42. Зручне місцерозташування - недалеко від зупинки "8 міська лікарня", поруч магазини, школа, дитячий садочок. Стан квартири - розпочатий, але не закінчений ремонт. Вікна замінені на м/пл, всередині білі, ззовні коричневого кольору. Лоджія засклена м/пл та повністю оздоблена та утеплена. Замінена електропроводка, труби, система опалення, міжкімнатні двері. В двох кімнатах: стіни - гіпсокартон, можна фарбувати або клеїти шпалери, підлога - ламінат. Ванна та вбиральня роздільні, кахель на стінах та підлозі. Комунікації відключені, дуже великий борг за комунальні послуги, входить у вартість квартири. Документи в порядку, один власник. Торг. Ваші пропозиції розглянемо
Кривий Ріг, Тернівський
Просторные апартаменты с двумя спальнями в Ж/К «Аркадийский дворец». Одеса 16
  • Трикімнатна
  • 110 м2
  • 8 / 12 пов.
650 $
Код: 68. ПОМЕСЯЧНО АРЕНДА АКТУАЛЬНА В ПЕРИОД С 01.09 ДО 30.05 (в летний сезон сдается посуточно от 2-х суток, раннее бронирование от 5-и суток и более). Просторные апартаменты с двумя спальнями в Ж/К «Аркадийский дворец», ул. Аркадийское плато, 5/3, 8/12 эт. дома, общая площадь 110 кв. м. (включая террасу). Две отдельные спальни без окон (установлена имитация окон), студия-кухня с мягкой мебелью. С гостиной выход на большую террасу с летней мебелью и шикарным видом на море. В санузле - душевая кабина. Закрытая, охраняемая территория, паркинг (подземный, платный). Ж/К находится над пляжем «Аркадия» в ста метрах от моря. Самый популярный курортный район и центр развлечений Одессы, район пляжей, ночных клубов, аттракционов, кафе и ресторанов. Возможно проживание с животными. Аренда от 3-х месяцев и более. Стоимость может варьироваться в зависимости от срока аренды. Перед просмотром уточните наличие и детали по VIBER, WHATSAPP или TELEGRAM, указав «КОД» из объявления. КОМИССИЯ ЗА УСЛУГИ РИЭЛТОРА - 50% от месячной аренды (разовая оплата при оформлении договора).
Одеса, Приморський
Шикарный новый двухэтажный на ул. Георгия Липского (Толбухина). Одеса 15
  • Двокімнатна
  • 225 м2
  • 2 / 2 пов.
600 000 $
Код: 1753. Шикарный новый двухэтажный на Таирово, улица Толбухина, 34А (сейчас улица Георгия Липского), 4 комнаты, общая площадь 225 кв. м., площадь участка 3,6 сотки, есть небольшой бассейн. Дизайнерский ремонт, кухня-студия, 3 спальни, 2 санузла. Есть необходимая мебель и бытовая техника, большие панорамные окна. Наличие объекта, актуальную стоимость, условия продажи, а также важные для вас детали интерьера (либо экстерьера) уточняйте непосредственно перед просмотром по VIBER/WHATSAPP/TELEGRAM (необходимо сообщить «КОД» указанный в объявлении). КОМИССИЯ ЗА УСЛУГИ РИЭЛТОРА – 5% от стоимости объекта (оплата по факту сделки).
Одеса, Приморський
офлайн
Альона
На сайті з 16 квітня 2020