1  / 10
Двокімнатна квартира 62.8 м² у клубному будинку на Яслинській, 3. - фото 1
Двокімнатна квартира 62.8 м² у клубному будинку на Яслинській, 3. - фото 2
Двокімнатна квартира 62.8 м² у клубному будинку на Яслинській, 3. - фото 3
Двокімнатна квартира 62.8 м² у клубному будинку на Яслинській, 3. - фото 4
Двокімнатна квартира 62.8 м² у клубному будинку на Яслинській, 3. - фото 5
Двокімнатна квартира 62.8 м² у клубному будинку на Яслинській, 3. - фото 6
Двокімнатна квартира 62.8 м² у клубному будинку на Яслинській, 3. - фото 7
Двокімнатна квартира 62.8 м² у клубному будинку на Яслинській, 3. - фото 8
Двокімнатна квартира 62.8 м² у клубному будинку на Яслинській, 3. - фото 9
Двокімнатна квартира 62.8 м² у клубному будинку на Яслинській, 3. - фото 10

Двокімнатна квартира 62.8 м² у клубному будинку на Яслинській, 3.

Київ, Солом'янський

Поскаржитись
95 152 $
0 переглядів оголошення | 0 сьогодні
Додано: 12 січня 2026, ID: 4660724
Характеристики
  • Без комісії Так 
  • Кімнат
  • Загальна площа 68.4 м2
  • Площа кухні 28 м2
  • Поверх
  • Поверховість
  • Тип стін Монолітний 
Опис
Двокімнатна квартира 62.8 м² у клубному будинку на Яслинській, 3. Квартира на високому першому поверсі.

Для тих, хто не шукає компромісів: спокійна локація, невеликий формат будинку, якісне будівництво — й простір для власного сценарію життя.
Квартира з можливістю зробити окремий вхід — чудовий варіант і для родини, і для поєднання житла з офісом, студією чи приватною практикою.

Солом’янський район, вулиця Яслинська, 3 — між Амосова і Клінічною. Близько до центру, транспорту, медичних установ, шкіл і всього необхідного для життя.

Будинок

• Новий клубний будинок на 22 квартири
• 4 поверхи: 3 повноцінні + мансарда
• Висота стелі 3 м
• Пасажирський ліфт
• Підземний паркінг (можна купити окремо)
• Побудований, введений в експлуатацію
• Підключення комунікацій — 2026
• Початок ремонтів — весна 2026

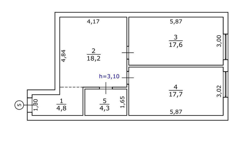
Загальна площа квартири 62.8 м², житлова 35.4

1 поверх із 4
• кухня-студія — 28.7 м²
• дві окремі кімнати по 17.2 м²
• санвузол — 4.0 м²
• прихожа — 1.3 м²
• є можливість облаштувати окремий вхід
• вікна виходять у зелений сквер

Просторе, світле та функціональне планування — без втрат корисної площі.

Комфорт і технічні рішення

• індивідуальне газове опалення
• мінімальна кількість сусідів
• сучасна інженерія без складних систем
• енергоефективні матеріали
• тиха зелена вулиця без трафіку

Ціна та умови

• Повна ціна: $ 95152. Умови отримання спеціальної зіни при покупці в цьому місяці можна обговорити при перегляді.
• Безвідсоткове розтермінування до 12 місяців при першому внеску від 30 %

Кому підійде ця квартира

• тим, хто шукає приватність замість поверховок
• тим, хто хоче якість і передбачуваність
• тим, хто планує поєднати житло з приватною практикою
• тим, хто цінує спокій, зелень і можливість адаптації під себе

Телефонуйте, щоб домовитися про перегляд або бронювання:
Зворотній зв’язок
Маргарита Анатольевна Погосбекова
офлайн
Схожі оголошення
Продам 3х комн. квартиру на пос. Котовского Одеса 6
  • Трикімнатна
  • 70 м2
  • 7 / 9 пов.
25 000 $
Предлагается к продаже 3х комнатная квартира на пос. Котовского на 7ом этаже 9ти этажного кирпичного, газового дома. Общая площадь 70кв.м. Большие светлые комнаты, столовая 12кв.м. Установлены: Входная, Бронированная дверь; Метало-Пластиковые Окна. Раздельный Сан.Узел Т/Душ.-Кабина. Бойлер. Новый лифт. Хорошее месторасположение: Две Школы, Детский Садик, Торговые Центры, Рынок, Областная Поликлиника и Больница. Транспортная развязка во все районы города. Цена 25 000у.е.
Одеса, Пересипський
2х комн. квартира в Лузановке Одеса 5
  • Двокімнатна
  • 38 м2
  • 3 / 5 пов.
16 000 $
В продаже 2х комнатная квартира в непосредственной близости от Моря, на среднем этаже 5ти этажного крепкого дома. Отличное состояние. Возможна продажа с мебелью и бытовой техникой. Квартира дворовая. Удачное расположение дома, позволяет за считанные минуты дойти до ухоженного берега Моря. Рядом расположены: Школа, Детский Садик, Торговые Центры. 16 000у.е. Возможен торг!
Одеса, Лузановка
Продам 2х комн. квартиру в Исторической Части Города Одеса 3
  • Двокімнатна
  • 30 м2
  • 2 / 2 пов.
18 000 $
Предлагается к продаже 2х комнатная кв-ра в Исторической Части Города. Расположена на 2м этаже крепкого жилого дома. Две раздельные комнаты. Сан.Узел Т/Душ облицован, установлен бойлер. 2х Тарифный Электро Счетчик день-ночь. Тихий, уютный двор. Хорошее месторасположение. В шаговой доступности: Рынок; Школа; Детский Садик; Парковая Зона; Магазины, Торговые Центры Транспортная развязка во все р-ны города... Цена 18 000у.е.
Одеса, Пересипський
офлайн
Маргарита Анатольевна Погосбекова
На сайті з 16 квітня 2020