1  / 2
4 поверх 1к квартира ЖК Діброва парк Dibrova park Сирець Виноградар - фото 1
4 поверх 1к квартира ЖК Діброва парк Dibrova park Сирець Виноградар - фото 2

4 поверх 1к квартира ЖК Діброва парк Dibrova park Сирець Виноградар

Київ, Шевченківський

Поскаржитись
64 000 $
0 переглядів оголошення | 0 сьогодні
Додано: 16 листопада 2025, ID: 4499422
Характеристики
  • Без комісії Ні 
  • Кімнат
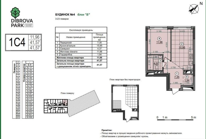
  • Загальна площа 43 м2
  • Площа кухні 16 м2
  • Поверх
  • Поверховість 23 
  • Ремонт Після будівельників 
  • Планування Роздільна 
  • Опалення Централізоване 
  • Комфорт Лифт, Грузовой лифт 
  • Коммуникации Центральный водопровод 
Опис
Актуальна до продажу 1к квартира у ЖК Діброва парк
Будинок 4 введений у експлуатацію, призначена адреса Вул. Некрасова 8
Вікна на захід.

Стан після будівельників
На підлозі лазерна стяжка, пожежна сигналізація, лічильники на холодну, електроенергію, протипожежні двері, металопластикові вікна Rehau із двокамерним склопакетом.

Великі відстані між будинками комплексу — велика рідкість у наші дні, і це одна з головних переваг цього комплексу, де ти на повні груди вдихаєш повітря свободи, і не відчуваєш себе в кам'яних джунглях. Біля Будинку 2 буде станція метро Мостицька

Вартість 64 000$
Свої податки сплачуємо
Запрошую на перегляд, чашку кави та прогулянку по ЖК)

Є інші 1к квартири у ЖК Діброва парк, Варшавський 3
Номер оголошення на сайті компанії: SF-3-240-352-LX.
Зворотній зв’язок
Денис Миколайович
офлайн
Схожі оголошення
Продаж 1-к.кв-ри під комерцію або житло по вул. Одеській. Привокзальна Львів 16
  • Однокімнатна
  • 20 м2
  • 1 / 3 пов.
33 000 $
Продаж 1-кім.кв-ри під комерцію або житло по вул. Одеській (Привокзальна). Дуже хороша локація, неподалік залізничний вокзал, Привокзальний ринок, недалеко до центру. Зараз по документах житловий фонд. Загальна площа 20 кв.м + під кухньою є підвал 7 м.кв, який можна об'єднати. Вхід в квартиру є із фасаду будинку, тому добре підійде для магазину, офісу, салону та іншого. У підвалі є виведена каналізація та підведена вода. Ціна 33000$, без торгу! Тел: ⓿❻❼❸❼⓿❼❺❸❸ або ⓿❾❺❻❼❾❾❺❷❸
Львів, Залізничний
Продаж 1К квартири в ЖК Welcome Home вулиця Стеценка 75 Київ 5
  • Однокімнатна
  • 54 м2
  • 1 / 1 пов.
51 000 $
Продаж 1К квартири в ЖК Welcome Home вулиця Стеценка 75 Будинок 11 Площа 48.54 м2 Висота стелі 2.7м Поверх 1/6 Просторі кімнати, не межує з ліфтом Лічильники на опалення, воду, електроенергію, встановлені опалювальні прилади (радіатори), влаштована гідроізоляція підлоги в санвузлах Будинок Введено в експлуатацію - Газоблок, в квартирі 1 кімната. Планування кімнат Роздільне. Загальний стан квартири - Від будівельників вільне планування. Працює без світла - опалення 044 200 10 80
Київ, Святошинський
Продаж 1-к квартири вул. Загорівська (Багговутівська) 25 Шевченківський район Київ 5
  • Однокімнатна
  • 47 м2
  • 19 / 25 пов.
70 000 $
Продаж однокімнатної квартири. Простора 1-кімнатна квартира в сучасному житловому комплексі ЖК Багговутівський, побудованому за монолітно-каркасною технологією. Будинок введений в експлуатацію у 2021 році, клас комфорт. Основні характеристики: Стан від забудовника: чистове стягування підлоги, встановлені радіатори, лічильники на воду, електроенергію та опалення, вхідні металеві двері; Висота стелі 2, 7 м; Засклений балкон; Панорамні металопластикові вікна з енергозберігаючими склопакетами; Автономне опалення (власна котельня); Централізоване водопостачання та електроенергія. З квартирою (ціна окремо) продається комора 4м2 на цьому поверсі. Вона також у приватній власності. 044 200 10 80
Київ, Шевченківський
офлайн
Денис Миколайович
На сайті з 16 квітня 2020