1  / 2
1 кімнатна квартира, по переуступці, ЖК "City Hub" - фото 1
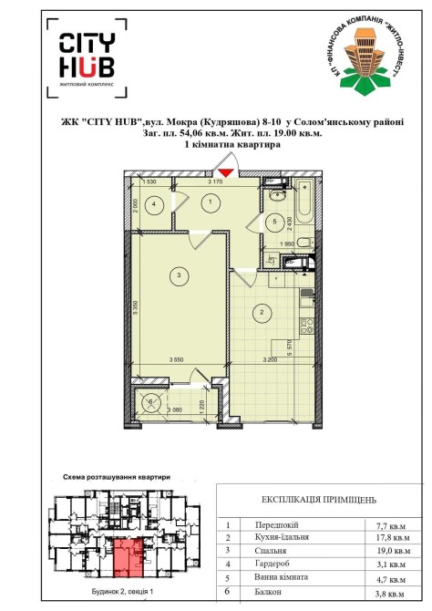
1 кімнатна квартира, по переуступці, ЖК "City Hub" - фото 2

1 кімнатна квартира, по переуступці, ЖК "City Hub"

Київ, Солом'янський

Поскаржитись
3 773 388 грн.
0 переглядів оголошення | 0 сьогодні
Додано: 16 листопада 2025, ID: 4498005
Характеристики
  • Без комісії Ні 
  • Кімнат
  • Загальна площа 54.06 м2
  • Площа кухні 17.8 м2
  • Поверх 15 
  • Поверховість 25 
  • Планування Роздільна 
Опис
КП “ФІНАНСОВА КОМПАНІЯ “ЖИТЛО-ІНВЕСТ” продає по договору переуступки 1 кімнатну

Квартира має роздільне планування/

1 кімнатна квартира розташована на 15 поверсі.
Загальна площа: 54.06 кв. м.
Житлова площа: 19.00 кв. м.
Кухня: 17.8 кв. м.
Ванна кімната: 4,7 кв. м.

ЖК «City Hub» - це сучасний житловий комплекс бізнес класу в якому втіленно сучасні технології будівництва, яке поєднує в собі високий рівень комфорту, стильний дизайн та екологічну дбайливість.

Житловий комплекс має вигідне розташування поруч з метро. Завдяки легкому доступу до громадського транспорту мешканці комплексу швидко та зручно зможуть дістатися до будь-якої точки міста.

Розвинена інфраструктура району включає в себе сучасні офісні будівлі, бізнес-центри, велика кількість кінотеатрів, музеїв та галерей, які доступні у безпосередній близкості до комлекту.

У безпосередній близкості до житлово комплексу є освітні заклади та уся необхідна соціальна інфраструктура.

Внутрішній простір житлового комплексу матиме сучасний дитячий майданчик з яскравими гірками. Для відпочинку та повної гармонії в комплексі передбачено зони відпочинку.

За межами ЖК «City Hub», у пішій доступності, знаходиться станція метро «Вокзальна» та Південний вокзал — 10 хвилини, новий торговий центр Terminal Foods, на території якого є супермаркет, ресторани, аптеки.

За більш детальною інформацією та записом на перегляд звертайтеся до відділу продажу: м. Київ, вул. Володимирська, 42, 222 кімната
Зворотній зв’язок
Олена
офлайн
Схожі оголошення
Продаж 3-к квартири , вул. Героїв Севастополя, 33 Солом'янський район Київ 3
  • Трикімнатна
  • 67.43 м2
  • 14 / 16 пов.
79 500 $
Продаж 3-кімнатної квартири , вул. Героїв Севастополя, 33 (район Інституту Шалімова) 3 окремі кімнати, висока стеля, два балкони, відокремлена простора комора, яка може бути переобладнана у гардероб, багато світла і простору . 14-й поверх відкривається гарний краєвид. Газ величезний плюс у період блекаутів. Санвузол роздільний, бойлер, ліфти працюють. Парк, садок, магазини, банк, НАУ, транспортна розвязка, поруч зупинка швидкісного трамваю, до метро Політехнічний інститут чи Шулявська кілька хвилин транспортом. До центру швидко і зручно. 044 200 10 80
Київ, Солом'янський
Продаж 1-к квартири ЖК Варшавський 3 Подільський район Київ 3
  • Однокімнатна
  • 43.39 м2
  • 15 / 25 пов.
71 000 $
Продаж - Однокімнатна квартира, ЖК Варшавський 3, Будинок 10,4 15 поверх Тип планування 1К1 Площа: - Загальна - 43,39 - Житлова - 13,52 - Кімната - 13,53 - Кухня-вітальня - 16,69 Вікна у двір Резервне живлення 044 200 10 80
Київ, Подільський
Продаж 1-к квартири вул. Степана Руданського 3а Київ 4
  • Однокімнатна
  • 40 м2
  • 25 / 25 пов.
73 000 $
Продаж 1-к квартири вул. Степана Руданського 3а. Автономне опалення, генератор на ліфт і воду пральна машинка, бойлер, двоспальне ліжко, велика шафа- повнфістю придатна для життя або здачі в оренду. Санвузол суміжний, є підігрів підлоги в ванній. 044 200 10 80
Київ, Шевченківський
офлайн
Олена
На сайті з 16 квітня 2020