1  / 1
Продаж Квартири ЖК Фруктова Алея - фото 1

Продаж Квартири ЖК Фруктова Алея

Львів, Шевченківський

Поскаржитись
99 000 $
0 переглядів оголошення | 0 сьогодні
Додано: 26 квітня 2026, ID: 4967779
Характеристики
  • Без комісії Так 
  • Кімнат
  • Загальна площа 55 м2
  • Площа кухні 17 м2
  • Поверх
  • Поверховість
  • Ремонт Після будівельників 
  • Тип стін Цегляний 
  • Опалення Власна котельня 
Опис
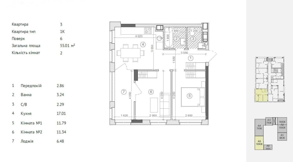
Продаж 2к квартири в ЖК «Фруктова Алея»
здача - 2 квартал 2026

Ціна: 99000$
Площа: 55,01м² / кухня 17м²
Поверх: 5/7
Санвузол: суміжний
Опалення: індивідуальне, дахова котельня

Локація: ЖК «Фруктова Алея», Під Голоском

Характеристики:
Квартира по переуступці. Будинок бізнес класу,
Секція з відпочинковою зоною на даху — доступ лише для мешканців !!!

лоджія 6,62м² — є можливість збільшити кухню-вітальню
якісне будівництво
сучасний житловий комплекс
Зворотній зв’язок
Назар
офлайн
Схожі оголошення
6-к квартира Дніпро, Індустріальний, 135000 $ Дніпро 16
  • 6 комнатная
  • 164 м2
  • 4 / 5 пов.
135 000 $
Выгодное предложение для покупки просторной квартиры класса "комфорт" в новом ЖК в спокойном районе. Эксклюзивная квартира в жк Олимпийский, Левобережный-3. Общей площадью 164м2, Дом сдан в 2017году, квартира находится в двух уровнях 4 и 5 этажи. Достаточно места для большой семьи и даже остаётся место для гостей. Всего 5 отдельных спален, кухня-студия 45м. На каждом этаже по санузлу: на первом этаже с душевой кабиной, на втором этаже ванная. Квартира распланирована как хороший дом: на одном этаже всё для общих интересов: большая кухня студия с оснащённой всяческой техникой кухня, обеденная зона, гостиная с удобным диваном, креслами, камином и большим телевизором, тут же есть и лоджия. На этом этаже есть санузел и 2 гостевых спальни. Красивая лестница ведёт на "семейный этаж" где мастер-спальня с лоджией и гардеробной комнатой. Есть 2 детских спальни с мебелью, ванная комната, постирочная с необходимой техникой. Под лестницей расположилось техническое помещение, гле установлены бесперебойник электрический, панель управления сигнализацией. Отопление осуществляется внутридомовой крышной котельной и теплыми полами в кухонной зоне и в санузлах, так и сплит системой кондиционирования на двух этажах. Есть и приточно- вытяжная система подачи воздуха в квартире на 500 кубометров, в каждой спальне всегда свежий воздух без теплопотерь. Высота потолка на втором этаже 3,2м на первом этаже 2,78м. Квартира продаётся как законченный объект для жизни: с мебелью и техникой. А техники много: индукционная плита с вытяжкой, духовой шкаф, огромный холодильник, посудомойка, стиральная машина, бойлер, кондиционеры во всех комнатах, камин, телевизор- плазма. Комфорт дома это закрытый двор с детской площадкой и уютными лавочками.Конечно есть парковка для автомобилей тут же возле двора. С документами на квартиру полный порядок и квартира готова к продаже. комісія: 5%
Дніпро
3-к квартира Дніпро, Шевченківський, 38000 $ Дніпро 15
  • Трикімнатна
  • 65 м2
  • 5 / 9 пов.
38 000 $
У продажу 3-на квартира на ЖМ Тополь-1. Комфотний 5й поверх з 9-ти, доглянутий будинок, новий ліфт. Квартира зі стандартною планіровкою 2+1, роздільним санвузлом, є і балкон і лоджа, вбудовані шафи для зберігання у передпокою. Вікна МПО у квартирі, лоджа засклана, а балкон залишили відкритим - не заскланим. Квартира дуже тепла, централізоване опалення працює добре (котельня поряд). Квартира у житловому стані, при продажу залишаються меблі та техніка: дівани, шафи, стінка у дітячій кімнаті, газова плита, нова керамична витяжка, холодильник, бойлер, пральна машина, кондиціонер. Дже зручне розташування будинку від зупинки транспорту Космічна повз АТБ пройти всього 2 будику, під вікнами розташовані ЦЕНТР ДИТЯЧОЇ ТА ЮНАЦЬКОЇ ТВОРЧОСТІ КРИЛА (Будинок Піонерів) та дітсадок, школа поряд за будинком. Документи готові до продажу, розглядаємо безготівкову угоду (держ програми "Е-відновлення", сетифікати). Чекаємо ваші пропозіції, дзвоніть. комісія: 5%
Дніпро
3-кімнатна з АВТОНОМКОЮ р-н Каплички з меблями та технікою ДЕРЖ.ПРОГРАМИ Біла Церква топ
  • Трикімнатна
  • 68 м2
  • 9 / 9 пов.
85 000 $
3-кімнатна квартира з АВТОНОМНИМ опаленням - є відеоогляд Також можливий продаж по державним програмам !!! Звертайтесь, обговоримо всі деталі. віл. Зенітного Полку, 46 м. Біла Церква район Каплички Продається сучасна, затишна 3-кімнатна квартира в одній із найкращих локацій міста. Ідеальний варіант для тих, хто цінує комфорт, якість та незалежність! Основні характеристики: • Загальна площа: 67 м² • Поверх: 9/9 (дах у відмінному стані, є технічний поверх) • Планування: дві окремі спальні та простора вітальня з великою кухнею • Стан: «Заходь та живи» — якісний добротний ремонт, квартира чиста та наповнена світлом. Чому ця квартира варта вашої уваги? 1. АВТОНОМНЕ ГАЗОВЕ ОПАЛЕННЯ — головна перевага! Ви самі регулюєте клімат у домі та суттєво економите на комунальних платежах (в самий холодний місяць було 1600 грн за опалення та гор.воду) 2. Розумне зонування: • В одній спальні балкон об’єднаний з кімнатою — облаштована стильна та функціональна робоча зона (кабінет). • У другій спальні — простора засклена лоджія. 3. Повна комплектація: При продажу залишаються всі меблі та техніка, що дозволяє переїхати одразу після угоди без зайвих витрат. 4. Комфорт: Роздільний санвузол з великою, зручною ванною кімнатою. 5. Доглянутий будинок: В будинку створено та активно працює ОСББ, чистий під’їзд, порядні сусіди, є тамбур. Локація — найкраща в місті: Все поруч: магазини, зупинки транспорту, зони для прогулянок та вся необхідна інфраструктура. Стартова ціна: 85 000 $ Ми відкриті до діалогу та готові вислухати ваші пропозиції щодо ціни! Телефонуйте, щоб домовитися про перегляд. Квартиру треба відчути і «приміряти» на себе, можливо це саме той варіант який ви шукаєте.
Біла Церква
офлайн
Назар
На сайті з 16 квітня 2020