1  / 2
Продаж двокімнатної квартири, ЖК Варшавський - 3 - фото 1
Продаж двокімнатної квартири, ЖК Варшавський - 3 - фото 2

Продаж двокімнатної квартири, ЖК Варшавський - 3

Київ, Подільський

Поскаржитись
77 000 $
0 переглядів оголошення | 0 сьогодні
Додано: 3 лютого 2026, ID: 4719774
Характеристики
  • Без комісії Ні 
  • Кімнат
  • Загальна площа 63 м2
  • Площа кухні 18.28 м2
  • Поверх 10 
  • Поверховість 25 
  • Планування Роздільна 
  • Тип стін Монолітний 
  • Опалення Централізоване 
  • Комфорт Сигнализация, Пожарная сигнализация, Видеонаблюдение, Охраняемая территория, Парковочное место, Гостевой паркинг, Лифт, Грузовой лифт 
  • Коммуникации Скважина, Электричество, Вывоз отходов, Асфальтированная дорога 
Опис
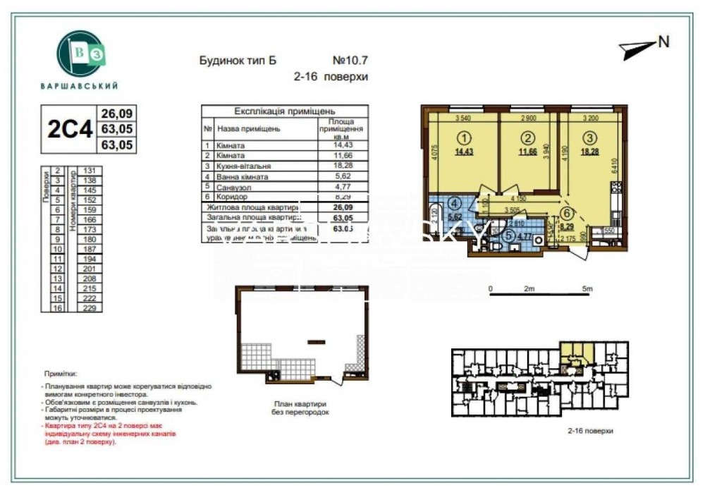
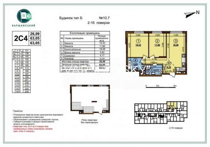
Пропонується до продажу двокімнатна квартира у новому будинку в житловому комплексі Варшавський - 3.
Будинок - 10.7.
Тип - 2С4.
Загальна площа - 63 м2.
Поверх - 10.
Вартість - 77000$.

У вартість квартири входять усі росходи по оформленню.

№2195
Зворотній зв’язок
Varshavsky House
офлайн
Схожі оголошення
Продам 1 комнату Одеса 6
  • Однокімнатна
  • 23 м2
  • 4 / 5 пов.
5 000 $
Самая дешёвая комната в общежитие на Черёмушках ! Площадь комнаты 13,5 метров. Есть кондиционер. Комната Под ремонт. Туалет (свой) Цена 5000уе Тел 0933464401 Прекрасное предложение для тех, кто ищет надежное и уютное жилье.
Одеса, Хаджибейський
6-к квартира Дніпро, Індустріальний, 145000 $ Дніпро 13
  • 6 комнатная
  • 164 м2
  • 4 / 5 пов.
145 000 $
Выгодное предложение для покупки просторной квартиры класса "комфорт" в новом ЖК в спокойном районе. Эксклюзивная квартира в жк Олимпийский, Левобережный-3. Общей площадью 164м2, Дом сдан в 2017году, квартира находится в двух уровнях 4 и 5 этажи. Достаточно места для большой семьи и даже остаётся место для гостей. Всего 5 отдельных спален, кухня-студия 45м. На каждом этаже по санузлу: на первом этаже с душевой кабиной, на втором этаже ванная. Квартира распланирована как хороший дом: на одном этаже всё для общих интересов: большая кухня студия с оснащённой всяческой техникой кухня, обеденная зона, гостиная с удобным диваном, креслами, камином и большим телевизором, тут же есть и лоджия. На этом этаже есть санузел и 2 гостевых спальни. Красивая лестница ведёт на "семейный этаж" где мастер-спальня с лоджией и гардеробной комнатой. Есть 2 детских спальни с мебелью, ванная комната, постирочная с необходимой техникой. Под лестницей расположилось техническое помещение, гле установлены бесперебойник электрический, панель управления сигнализацией. Отопление осуществляется внутридомовой крышной котельной и теплыми полами в кухонной зоне и в санузлах, так и сплит системой кондиционирования на двух этажах. Есть и приточно- вытяжная система подачи воздуха в квартире на 500 кубометров, в каждой спальне всегда свежий воздух без теплопотерь. Высота потолка на втором этаже 3,2м на первом этаже 2,78м. Квартира продаётся как законченный объект для жизни: с мебелью и техникой. А техники много: индукционная плита с вытяжкой, духовой шкаф, огромный холодильник, посудомойка, стиральная машина, бойлер, кондиционеры во всех комнатах, камин, телевизор- плазма. Комфорт дома это закрытый двор с детской площадкой и уютными лавочками.Конечно есть парковка для автомобилей тут же возле двора. С документами на квартиру полный порядок и квартира готова к продаже. комісія: 5%
Дніпро
Продам 1 ком Альтаир Одеса 6
  • Однокімнатна
  • 45 м2
  • 13 / 24 пов.
64 000 $
Продам квартиру ЖК «Альтаир-3» Одесса, Жаботинского Этаж 13 из 24, видовая (море) Квартира 46кв.м., расположена в сданной секции, люди уже делают ремонты. Сделан ремонт (Штукатурка стен, потолка, проведена электропроводка, подключена гарячая, холодная вода, канализация )Уже облицован санузел, душевая кабина, и облицована кухня. Сделаны натяжные потолки. Кухня-гостиная зонирована Квартира полностью меблирована Все новое, никто не жил. Купите квартиру и живите с комфортом. Цена 64000уе тел 0933464401
Одеса, Київський
офлайн
Varshavsky House
На сайті з 16 квітня 2020