1  / 4
Продаж 2-кімнатної квартири | 86м² | ЖК “Новопечерські Липки” - фото 1
Продаж 2-кімнатної квартири | 86м² | ЖК “Новопечерські Липки” - фото 2
Продаж 2-кімнатної квартири | 86м² | ЖК “Новопечерські Липки” - фото 3
Продаж 2-кімнатної квартири | 86м² | ЖК “Новопечерські Липки” - фото 4

Продаж 2-кімнатної квартири | 86м² | ЖК “Новопечерські Липки”

Київ, Печерський

Поскаржитись
223 600 $
0 переглядів оголошення | 0 сьогодні
Додано: 19 лютого 2026, ID: 4768117
Характеристики
  • Без комісії Так 
  • Кімнат
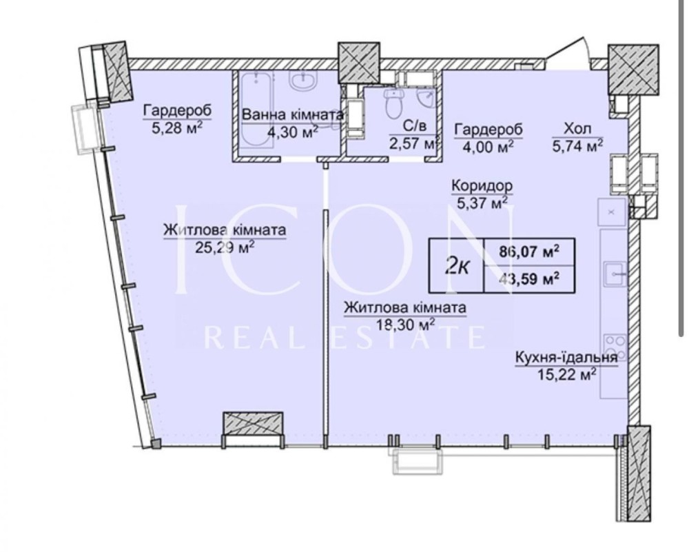
  • Загальна площа 86 м2
  • Площа кухні 15 м2
  • Поверх
  • Поверховість 24 
  • Тип стін Монолітний 
  • Опалення Централізоване 
Опис
Продаж 2-кімнатної квартири в ЖК “Новопечерські Липки”8 черга | 5 поверхПропонується стильна 2-кімнатна квартира в одному з найпрестижніших житлових комплексів Києва — Новопечерські Липки.8 черга — сучасна архітектура, нові комунікації, доглянута територія.Комфортний 5 поверх — ідеальний баланс між приватністю та зручністю.ЖК “Новопечерські Липки” — це: закрита територія 24/7 багаторівнева система безпеки власна інфраструктура: ресторани, кав’ярні, салони, спортклуби підземний паркінг доглянуті алеї та зони відпочинкуКвартира — чудовий варіант як для власного проживання, так і для інвестиції (високий попит на оренду в комплексі).Статусна локація в центрі Печерська.Життя серед успішного оточення.Для Вашого розгляду маю багато альтернативних пропозицій від забудовника та від власника.Деталі — за телефоном.Перегляди у зручний для вас час.#2830
Зворотній зв’язок
Комарніцький Костянтин
онлайн
Схожі оголошення
Продається 3-кімнатна квартира з дизайнерським ремонтом . Заводський район Миколаїв 14
  • Трикімнатна
  • 64 м2
  • 2 / 5 пов.
54 000 $
Продається простора трикімнатна квартира у Заводському районі (перехрестя вул. Олексія Вадатурського та Образцова). Квартира розташована на комфортному другому поверсі п’ятиповерхового , будинку сталінського типу з метровими цегляними стінами та високими стелями (3м), що забезпечує відмінну шумлізоляцію та відчуття простору. Утеплена по фасаду, не кутова. В квартирі виконаний сучасний дизайнерський ремонт , без економії на матеріалах, після завершення ремонту ніхто не проживав. Повністю замінені всі комунікації, встановлені лічильники, кондиціонер та проведений інтернет. Зручне планування дві окремі спальні, велика кухня-студія, просторий суміжний санвузол. Закритий двір з відео спостереженням та охороною території, а також наявність укриття в будинку є важливою перевагою. В дворі є місце для паркування авто. Поруч вся необхідна інфраструктура Можливий продаж за програмою Є-відновлення, можливий торг. Є відеоогляд! Телефонуйте та приходьте на перегляд !!!
Миколаїв, Заводский
1-к квартира Київ, Дарницький, 93000 $ Київ 12
  • Однокімнатна
  • 44.5 м2
  • 5 / 24 пов.
93 000 $
Чавдар Єлизавети вул.7 Продаж 1-к квартири 45кв.м. розташована на 5 пов./24пов. будинку, - спецпроект, - монолітно - каркасний будинок, 2013року забудови. ЗАГАЛЬНА площа - 44.5кв.м. Н - 2.75м. - кімната -17.4кв.м - кухня - 11.8кв.м. з виходом на звскленй балкон, - суміщений санвузол - 4.4кв.м., - гардеробна - 2.7кв.м. Квартира з сучасним ремонтом в ХОРОШОМУ стані, - вбудована кухня з побутовою технікою. - санвузол - чавунна ванна, німецька сантехніка GROHE - енергозберігаючі пластикові вікна, - підлога паркетна дошка, столярка - натур. дерево, В будинку створено ОСББ, Індивідуально лічильники на квартиру, ГЕНЕРАТОР. Перший поверх - нежитлові приміщення, консьєрж. ЗРУЧНЕ МІСЦЕ РОЗТАШУВАННЯ. розвинена інфраструктура. Поруч розташовані супермаркет Новус, ТЦ Алладін, кінотеатр, ТЦ Епіцентр, ТЦ Метро, Школа "Maple Bear", школа І ст. №333, Гімназія Київська Русь дитячий садок, лікарня Борис ... Парковка: наземна. Зручне транспортне сполучення: в 12хв. ходьби знаходяться станції метро Позняки та 5хв. метро Осокорки. Багато маршруток забезпечують сполучення з усіма районами міста. Квартира повністю готова до продажу. Можливий продаж по Державній програмі. Розглянемо всі реальні пропозиції. ПЕРЕГЛЯД по домовленості, телефонуйте у будь який час.
Київ
Продажа 4-квартиры 1 мкрн Левый берег с ГАО Кам'янське 17
  • Чотирикімнатна
  • 80 м2
  • 6 / 9 пов.
50 000 $
ПРОДАЖА просторной 4-комнатной квартиры с ГАО Левый Берег, 1 микрорайон, ул. Харьковская Предлагаем отличную 4-комнатную квартиру с качественным современным ремонтом, расположенную на 5 этаже 9-этажного дома. Общая площадь — 79,5 м². Квартира не угловая, очень тёплая, полностью утеплена снаружи. ✅ Выполнен капитальный ремонт «для себя» из дорогих и качественных материалов: — выровнены стены и полы — заменены трубы водоснабжения и канализации — новая электропроводка — несколько сценариев освещения ???? В квартире установлены: — металлопластиковые окна — газовое автономное отопление — кондиционеры — металлическая входная и качественные межкомнатные двери — система охраны Отделка: обои и декоративная штукатурка, на полу ламинат и кафель. ???? Раздельный санузел в современном кафеле — удобно для большой семьи. ???? Кухня укомплектована добротным гарнитуром с рабочей поверхностью и встроенной техникой — остаётся новым владельцам. ➕ Есть 2 лоджии и балкон. Квартира частично меблирована — можно сразу заехать и жить. ???? Без долгов и зарегистрированных лиц. ???? Отличное расположение — развитая инфраструктура 1 микрорайона: школа №29, детские сады, автостоянка, салоны красоты, банки, «Новая Почта», гипермаркет «Эпицентр», супермаркеты «Варус» и «АТБ», отделение полиции — всё в шаговой доступности. Ухоженные детские и спортивные площадки. ???? Елизаветовский котлован (Голубое озеро) — всего в 2 км от дома. Идеально подойдёт для семьи с детьми, комфортной жизни или аренды высокого класса. ???? Цена: 49 999 $ ???? Наталья: 098-335-63-71 Ждём вас на просмотр! Если нужно продать или сдать вашу недвижимость — обращайтесь, работаем на ваших условиях, предоставляем бесплатные юридические консультации и сопровождаем сделку полностью.
Кам'янське
онлайн
Комарніцький Костянтин
На сайті з 16 квітня 2020