59 400 $
6 переглядів оголошення |
0 сьогодні Показати статистику
Додано: 14 червня 2025, ID: 3942055
Характеристики
- Без комісії Так
- Кімнат 2
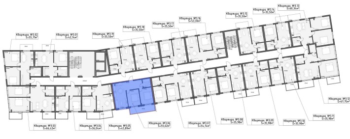
- Загальна площа 55 м2
- Площа кухні 19 м2
- Поверх 3
- Поверховість 4
- Планування Роздільна
- Тип стін Цегляний
- Комфорт Панорамные окна, Видеонаблюдение, Гостевой паркинг, Лифт
- Коммуникации Газ, Центральный водопровод, Электричество, Центральная канализация
Опис
Ласкаво запрошуємо до нашого Житлового комплексу бізнес-класу з ідеальною розташуванням та розвиненою інфраструктурою!
Перший внесок від 20%!
Об`єкт на етапі будівництва, термін здачі 4 квартал 2026 року.
Характеристики будинку:
- 4-поверховий житловий комплекс з першим поверхом для комерційних приміщень.
- Будівництво здійснюється за сучасною технологією з використанням цегли та монолітно-каркасної конструкції.
- Стіни виготовлені з керамоблоків та утеплені пінополістиролом (пінопластом).
- Індивідуальне опалення в кожній квартирі забезпечує комфорт та ефективність.
- Висота стелі складає 2.8 метрів, що створює відчуття простору та вільності.
- Комплекс складається з першого поверху комерційних приміщень та 38 житлових площ, які продаються з чорновим ремонтом, готовими до індивідуального оздоблення.
- Територія комплексу є відкритою, з дбайливо озелененою зоною.
Зручне паркування:
- Гостьовий паркінг на 20 місць розташований на відкритій території.
- Підземний паркінг з ліфтом на 20 місць, з можливістю купівлі.
ІНФРАСТРУКТУРА:
- центр Львова за 15хв;
- школи;
- зупинки громадського транспорту;
- дитячий майданчик на внутрішній закритій території;
- торгові центри;
- дитячі садочки;
- спорт комплекс "STARFIT»;
- магазини.
В ЦІНУ ВХОДИТЬ:
- кладка з червоної керамічної цегли (керамічні блоки).
- утеплений фасад 100-150мм і дах 200мм
- залізобетонне перекриття
- двері броньовані, преміум класу
- вікна затемнені-дзеркальні енергозберігаючі двокамерні, п’ятикамерний профіль(Rehau), німецька фурнітура (Wink House)
- індивідуальне опалення
- комунікації підключено, встановлено лічильники на воду, електроенергію
- штукатурка чистова під маяки
- закрита облаштована територія, відеонагляд, парковка, дитячий майданчик
- ОСББ, домофон, інтернет.
Не пропустіть можливість стати власником якісного та комфортного житла в зручному місці! Звертайтеся до нас для отримання додаткової інформації та організації перегляду.
Перший внесок від 20%!
Об`єкт на етапі будівництва, термін здачі 4 квартал 2026 року.
Характеристики будинку:
- 4-поверховий житловий комплекс з першим поверхом для комерційних приміщень.
- Будівництво здійснюється за сучасною технологією з використанням цегли та монолітно-каркасної конструкції.
- Стіни виготовлені з керамоблоків та утеплені пінополістиролом (пінопластом).
- Індивідуальне опалення в кожній квартирі забезпечує комфорт та ефективність.
- Висота стелі складає 2.8 метрів, що створює відчуття простору та вільності.
- Комплекс складається з першого поверху комерційних приміщень та 38 житлових площ, які продаються з чорновим ремонтом, готовими до індивідуального оздоблення.
- Територія комплексу є відкритою, з дбайливо озелененою зоною.
Зручне паркування:
- Гостьовий паркінг на 20 місць розташований на відкритій території.
- Підземний паркінг з ліфтом на 20 місць, з можливістю купівлі.
ІНФРАСТРУКТУРА:
- центр Львова за 15хв;
- школи;
- зупинки громадського транспорту;
- дитячий майданчик на внутрішній закритій території;
- торгові центри;
- дитячі садочки;
- спорт комплекс "STARFIT»;
- магазини.
В ЦІНУ ВХОДИТЬ:
- кладка з червоної керамічної цегли (керамічні блоки).
- утеплений фасад 100-150мм і дах 200мм
- залізобетонне перекриття
- двері броньовані, преміум класу
- вікна затемнені-дзеркальні енергозберігаючі двокамерні, п’ятикамерний профіль(Rehau), німецька фурнітура (Wink House)
- індивідуальне опалення
- комунікації підключено, встановлено лічильники на воду, електроенергію
- штукатурка чистова під маяки
- закрита облаштована територія, відеонагляд, парковка, дитячий майданчик
- ОСББ, домофон, інтернет.
Не пропустіть можливість стати власником якісного та комфортного житла в зручному місці! Звертайтеся до нас для отримання додаткової інформації та організації перегляду.
Схожі оголошення
- Двокімнатна
- 52.9 м2
- 2 / 4 пов.
20 000 $
2-кім.квартира, 52,9 м2 , 2 пов.
4-поверхового цегляного будинку.
Опалення автономне газове,
водопостачання - артезіанська свердловина з водою високі якості, кімнати роздільні, санвузол теж роздільний, велика лоджія 5,5м х 1,5м.
Квартира світла , тепла і суха. В наявності власна кладова в підвальному приміщенні. Всі комунікації в повному
порядку. Квартира знаходиться в
мальовничому, безпечному і спокійному селищі Губник (Ладижинська громада).
Поряд річка і чисті озера , прекрасні місця для відпочинку. Є регулярне
автобусне получення з м.Ладижин,
також автобуси для школярів, продуктові магазини, пошта. Розміри кімнат і план квартири дивіться на фото
планування.
Ладижин
- Двокімнатна
- 50 м2
- 1 / 9 пов.
96 000 $
Продаж 2-к квартири вул. Білоруська 30а.
З сучасним ремонтом з обʼєднаною кухнею-вітальнею на першому поверсі (фізично квартира розташована суттєво вище, більше схоже на 2 поверх).
Квартира повністю готова до проживання.
Планування сучасне.
044 200 10 80
Київ, Шевченківський
- Однокімнатна
- 46 м2
- 5 / 16 пов.
120 000 $
БЕЗ %. Продам 1 кімнатну квартиру в ЖК «Перлина Кадетського Гаю» з дизайнерським ремонтом по вул. Єрнста, 16а.
Будинок введення в експлуатацію у 2012 році. 5 поверх/16 поверхового кирпичного будинку. Загальна площа 46 м. кв., житлова 32 м. кв., кухня 8 м, кв.
Інтер'єр виконаний у сучасному стилі з використанням якісних матеріалів. Продумане планування, комфортна житлова зона, функціональна кухня. Квартира повністю готова до проживання без додаткових вкладень.
Санвузол сумістний, встановлений бойлер, душова кабіна.
Комплекс закрить, з охороною та відеоспостереженням, відкритим паркінгом,
Переваги: комфортний 5 поверх, сучасний будинок, дизайнерський ремонт, підходить для життя або для здачі в оренду. Розвинена інфраструктура АТБ, Фора, Аптеки, Школа, дитячий садок. Поруч парк, озеро.
Зручна транспортна розв'язка.
Вартість 120 000 у.о. без комісії для покупця
.
Тел. +38 097 246 89 89 Оксана.
valion.ua /1144809
Київ, Солом'янський











