1  / 3
Продаж 2-кім квартири по вул Наукова Трускавецька - фото 1
Продаж 2-кім квартири по вул Наукова Трускавецька - фото 2
Продаж 2-кім квартири по вул Наукова Трускавецька - фото 3

Продаж 2-кім квартири по вул Наукова Трускавецька

Львів, Залізничний

Поскаржитись
80 000 $
0 переглядів оголошення | 0 сьогодні
Додано: 27 квітня 2026, ID: 4970871
Характеристики
  • Без комісії Ні 
  • Кімнат
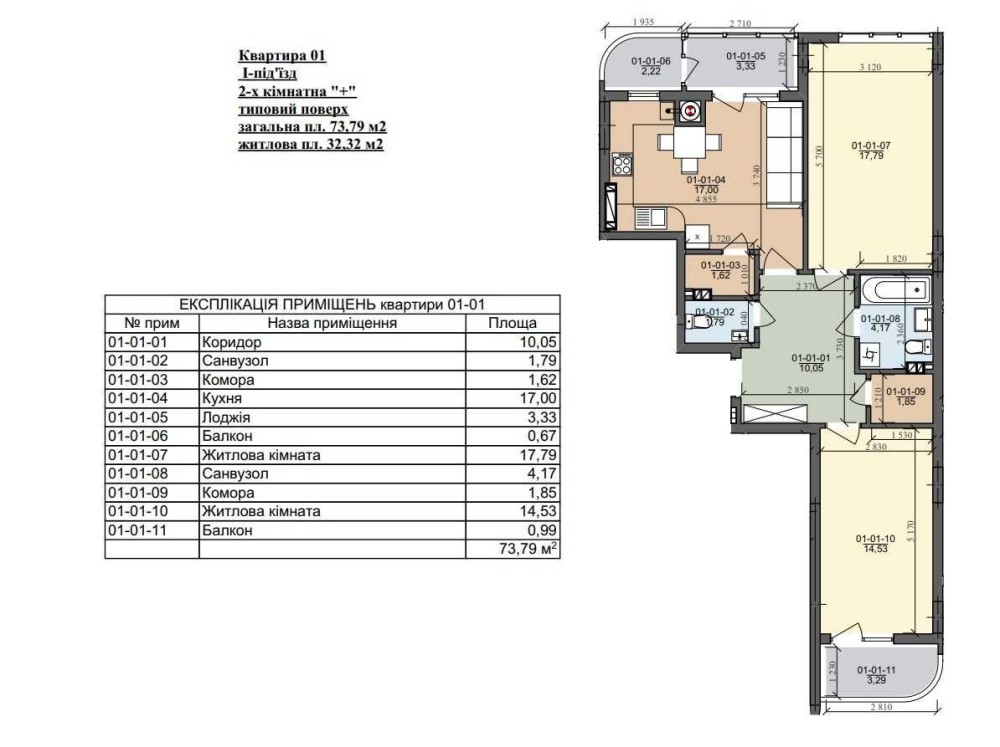
  • Загальна площа 74 м2
  • Площа кухні 17 м2
  • Поверх
  • Поверховість 10 
Опис
Будинок Ж.
Продаж 2-кім квартир в новобудові по вулиці Трускавецької (забудовник Галжитлобуд) Франківського р-н.Утеплені стіні, засклені лоджії, 0-цикл, МП-вікна, стяжка, штукатурка, індивідуальне опалення (котел, батареї).Спальний р-н, розвинута інфраструктура, дит садочки, школа,супермаркети , 10хв до Viktoria Gardens
Зворотній зв’язок
Остап
офлайн
Схожі оголошення
Продам 2-кімнатну квартиру з ремонтом та меблями, Дарницька площа, Соцмісто, Комфорт Таун, вул. Каун Київ 18
  • Двокімнатна
  • 41 м2
  • 5 / 5 пов.
57 000 $
Продаж: 2-кім квартира. Дніпровський район. Соцмісто, Дарницька площа, метро Лівобережна, Дарниця, Чернігівська, поруч Комфорт Таун. Вул. Каунаська, 6/1. Про будинок: 5-ти поверховий панельний будинок, 1963 року побудови. Чистий під'їзд, домофон. Прибудинкова територія доглянута, висаджено клумби з квітами, є місце для паркування авто. Про квартиру: Розташована на 5 поверсі(зверху є тех. поверх). Стан – хороший житловий. Загальна площа 41м2. Практичне планування: дві кімнати, кухня, сумісний санвузол, засклена лоджія, кладова. Замінені сантехніка та електрика, присутня газова плита. Встановлено лічільники на електрику та воду. Квартира не кутова, світла, ніякої вологості та плісняви. Інфраструктура: Чудова локація, в пішій доступності школа, дитячий садок, продуктовий ринок, Novus, аптеки, кафе. Зручна транспортна розв'язка - 5 хвилин ходьби до зупинки маршруток до метро Дарниця, Лівобережна, Чернігівська. Ціна: 57 000 $! Телефонуйте, відповім на додаткові запитання та організую перегляд у зручний час за попередньою домовленістю. З повагою, ВАШ ріелтор, Ростислав. 095-908-49-11
Київ, Дніпровський
Продаж 3-к квартири вул. Татарська 27/4 Київ 3
  • Трикімнатна
  • 122 м2
  • 6 / 12 пов.
155 000 $
Продаж 3-к квартири вул. Татарська 27/4. Простора сімейна квартира в тихому місці. Головна родзинка величезна вітальня 44 м², Планування ідеальне для комфортного життя великої родини або для тих, хто цінує простір. Висота стелі 2, 75 м. Поруч сквери та парки для прогулянок. 044 200 10 80
Київ, Шевченківський
Продаж 1 кімнатної квартири 34 кв.м. по вул Януша Корчака 7/2 Нивки Київ 8
  • Однокімнатна
  • 34 м2
  • 2 / 5 пов.
45 000 $
Продажа 1к квартири 34 кв. м по вул. Януша Корчака 7/2. 2/5 поверхового будинку. Хрущовка. Нивки , Шевченківський район. Планування: Кімната 17,0 кв.м Кухня 7,0 кв.м Будинок розташований в тихому, спокійному зеленому районі, поруч парк " Нивки". Будинок 1962 року будівництва, матеріал- цегла, Квартира підготовлена під фінішний ремонт, пофарбовані стіни та стеля в нейтральні відтінки, Підлога ламінат. Чистий, доглянутий під'їзд. Інфраструктура- в пішій досяжності школа, садок, медичні заклади, аптеки, парк, озеро. Чудова траспортна розв'язка- в 10 хвилинах ходу метро " Нивки" та зупинки громадського транспорту у всі напрямки міста Києва. Розглядаємо безготівковий розрахунок. Ціна: 45000 у.е.+ комісія 0975004360 Ольга valion/ua 1149221
Київ, Шевченківський
офлайн
Остап
На сайті з 16 квітня 2020