1  / 2
Продається будинок в Крюківщині!!! - фото 1
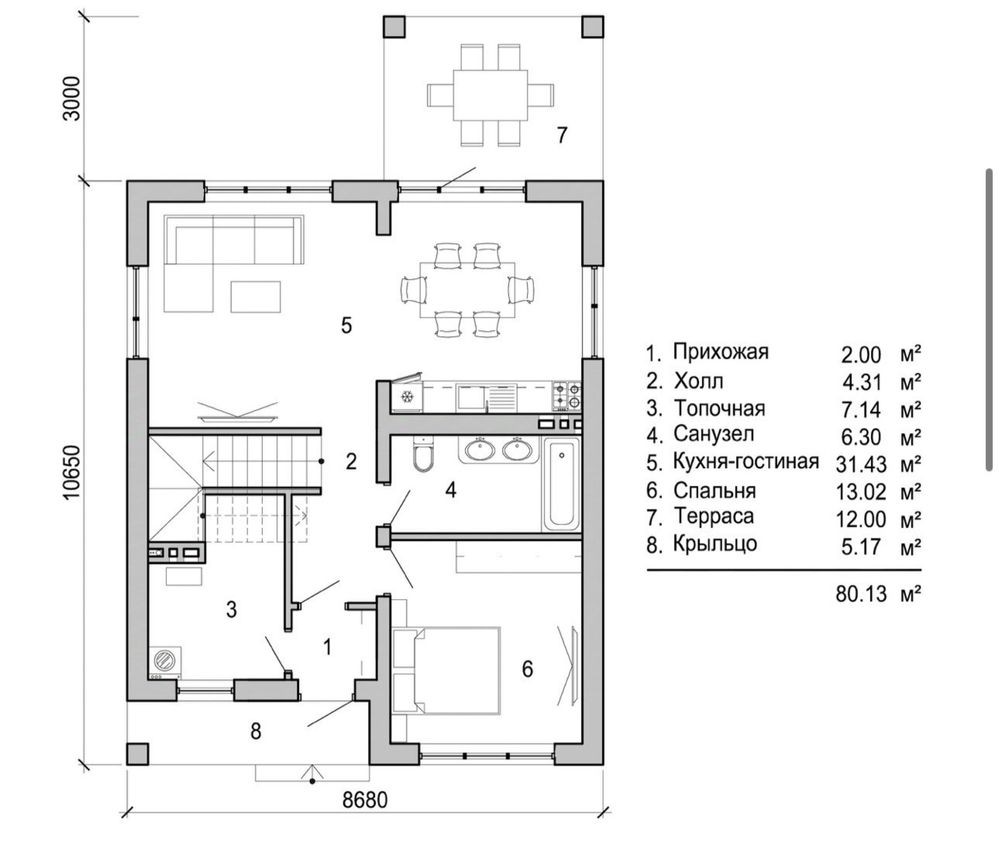
Продається будинок в Крюківщині!!! - фото 2

Продається будинок в Крюківщині!!!

Крюківщина

Поскаржитись
150 000 $
2 перегляди оголошення | 0 сьогодні Показати статистику
Додано: 24 лютого 2026, ID: 4781222
Характеристики
  • Без комісії Так 
  • Кімнат
  • Загальна площа 134 м2
  • Поверховість
  • Площа ділянки 4 сот.
  • Ремонт Після будівельників 
  • Комфорт Автоматичні ворота 
  • Коммуникации Газ, Скважина, Электричество, Канализация септик, Асфальтированная дорога 
Опис
Будинок, Крюківщина(масив Оришки)

​Продається сучасний будинок площею 134 м² з усіма необхідними комунікаціями: газ, електрика 16 кВт, вода зі свердловини. Зроблено штукатурку, тож ви зможете завершити оздоблення на свій смак.

​Будинок має власну простору терасу 12 м², де приємно проводити час на свіжому повітрі. Земельна ділянка 4 сотки, огороджена парканом. Автоматичні ворота забезпечують комфортний заїзд.

​Будинок на етапі завершення фасадних робіт.

​Чудовий варіант для комфортного проживання родини!
Зворотній зв’язок
Інна
офлайн
Схожі оголошення
Продам будинок на березі Дніпра власний берег річки 25 соток землі Дніпро 9
  • Чотирикімнатна
  • 67 м2
  • 25 соток
40 000 $
продам будинок на березі Дніпра власний берег річки 25 соток землі Дніпропетровськ область Дніпровський район с Діброва вул Некрасова 21 ціна 40000 дол
Дніпро, Самарський
Дом с коммуникациями возле озера в Быковой Гребле. Біла Церква 20
  • Трикімнатна
  • 77.4 м2
  • 57.4 соток
25 000 $
Продам дом в селе Быковая Гребля Белоцерковского района. 20 км.от Белой Церкви, 90 км.от Киева, удобный заезд сразу с Одесской трассы. Площадь 77.4 кв.метра, три комнаты (22;17;11), кухня, санузел, коридор, котельная. Подключены централизованные газ и электроэнергия, вода заведена из колодца, водоотведение в сливную яму. Отапливается газовым котлом или дровяной печью и печью-лежанкой. Бойлер на горячую воду. Саман облицованный кирпичом. Хорошее жилое состояние. Новые металлопластиковые окна. Душевая кабина. Участок 57.4 сотки. Напротив большое озеро, недалеко лес. На территории собственная пасека, летняя кухня с заведенным газом, сарай, три погреба, колодец. В селе детский сад, отделение почты, медпункт, магазины. Документы проверены, все узаконено и приватизировано, готовы к продаже. Цена: 25.000 у.е. Готовы выслушать предложения по торгу. Агентство недвижимости "ИмпериЯ" предоставляет полный перечень услуг по вопросам связанным с недвижимостью: -бесплатная консультация; -экспертная оценка недвижимости; -услуги БТИ; -консультация по ипотеке; -оформление наследства; -кредит под залог недвижимости; -купля-продажа жилой недвижимости; -купля-продажа коммерческой недвижимости; -аренда жилых помещений; -аренда коммерческих объектов; -купля-продажа земли. Бесплатно принимаем заявки от продавцов и арендодателей. Гарантируем объективную оценку, качественную рекламную компанию и юридическую поддержку. Юридическое сопровождение сделки до момента вручения право устанавливающих документов, проверка недвижимости на наличие арестов, отягощений, и.т.п. Предоставляем услуги по сопровождению в изготовлении документации: -на пристройку, перепланировку, реконструкцию и т.п.; -на приватизацию земли, присвоение кадастрового номера; -на перевод под нежилое, смена целевого назначения; -на начало строительства, ввод в эксплуатацию; -на узаконивание самовольного строительства; -срочный выкуп недвижимого имущества. Официально зарегистрированное предприятие с постоянным адресом, квалифицированным персоналом и опытом работы. Тел: (097)-800-17-32 (063)-647-15-24 (099)-760-74-79
Біла Церква
Продам старий будиночок з гарною земельною ділянкою в Скригалівці Фастів 5
  • Однокімнатна
  • 35 м2
  • 25 соток
7 500 $
Фастівський район, с. Скригалівка. Продається старенький дерев'яний будиночок, загальна площа 35,1 кв. м, житлова 15,1 кв. м: кімната, кухня, передпокій. Ділянка 25 соток, приватизована. Гарна рівна ділянка під нову забудову, а також тиха мальовнича місцевість під дачу. Неподалік ліс, ставки. Вартість об'єкта містить всі додаткові витрати 7500 у. о.
Фастів