1  / 2
Продається будинок 140м2, Казбет, р-н ЧНУ - фото 1
Продається будинок 140м2, Казбет, р-н ЧНУ - фото 2

Продається будинок 140м2, Казбет, р-н ЧНУ

Черкаси

Поскаржитись
218 000 $
3 перегляди оголошення | 0 сьогодні Показати статистику
Додано: 21 березня 2026, ID: 4860203
Характеристики
  • Без комісії Ні 
  • Кімнат
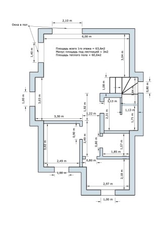
  • Загальна площа 140 м2
  • Поверховість
  • Площа ділянки 3 сот.
Опис
Будинок розташований за адресою вул. Г.Косинського 40. Широка асфальтована вулиця, що рідкість для Казбету. Від зупинки ЧНУ 5хв ходу.
Вулиця тиха, сусіди хороші.
Заведені всі центральні комунікації — газ, електрика (380В), вода та каналізація, оптоволоконний інтернет від МакЛаута.
Земля приватизована, 3 сотки. У дворі місце для двох автомобілів.

Дом із газоблоку, ширина стін 400мм плюс утеплення мінватою 100мм. Криша — металочерепиця.
Перекриття — плити та моноліт.
Із внутрішнього ремонту зроблено — чистова стяжка підлоги, оштукатурювання стін, розводка електрики, води, каналізації та опалення. Опалення - на 1му поверсі тепла підлога, на 2му поверху - радіатори та тепла підлога у ванній. Встановлено газовий та електро котли, бойлер непрямого нагріву на 200л.
Є кондиціонер.
Бетонні сходи на другий поверх.
Зроблена розводка проводів під сигналізацію, відеоспостереження та домофон.
У дворі проведена розетка для підключення електрогенератора. Також підведений кабель до місця зарядки електроавтомобіля. Автоматика на воротах.

На першому поверсі розташована обʼєднана кухня/столова/вітальня, хоз.приміщення, туалет, топкова, тамбур.
На другому поверсі — три окремі кімнати, ванна.

Ціна вказана за будинок у стані, який є на момент подачі обʼяви. Але будівництво триває, тому ціна буде змінюватися в залежності від доданих робіт.

Для оцінки якості будівництва та матеріалів є фотозвіт всього процесу.
Зворотній зв’язок
Володимир
офлайн
Схожі оголошення
Продаж сучасного будинку, р-н 95 Квартала, вул. Вітебська Кривий Ріг 20
  • Трикімнатна
  • 250 м2
  • 4.2 сотки
220 000 $
Комфортабельний будинок з другим світлом. Рік забудови 2010. - Саксаганський район - вул. Вітебська - район 95 кварталу На невеликій ділянці з ландшафтним дизайном зони відпочинку, озеро, хвойні дерева. В'їзд до гаражу накритий великим навісом з кованого заліза та полікарбонату. Планування будинку: - двоповерховий будинок - автоматичні ворота на ділянку - перший поверх - передпокій, гостьова, кухня-вітальня з терасою, с/вузол. - другий поверх - три спальні, балкон, ванна кімната - в цокольному поверсі знаходиться сауна, джакузі, кімната відпочинку, с/вузол, майстерня, кладова, котельня - гараж з автоматичними воротами, вхід з будинку - додатковий вхід на задній двір - приміщення для генератора з готовим приєднанням до мережі будинку - земельна ділянка 4, 2 сотки кадастровий номер, огорожена парканом. Планування будинку: - загальна площа 250 кв.м - житлова 98 кв.м - кухня-вітальня 40 кв.м - гостьова 27 кв.м - гараж 20 кв.м - вбудовані меблі: кухня, шафа-купе, гардеробна Комунікації: - камін на дровах - центральне електропостачання, три фази, 380V - стабілізатори напруги на кожну фазу - центральне водопостачання - центральна каналізація - газовий котел - "Ferroli" - система фільтрації для очищення води - тепла підлога - відео нагляд, охорона Матеріали забудови: - фундамент - лита чаша, залізобетон - дах - бітумна черепиця - стіни — червона цегла, обкладена декоративною цеглою з утеплювачем з базальтової вати - огорожа — цегла, метал, залізобетон - проводка — мідна - перекриття — бетоні - підлога - керамограніт, кахель, бамбукова паркетна доска - вікна - двокомірковий склопакет Логістична розв’язка: - учбові заклади, лікарня, торговельні центри - зручний під'їзд - поруч супермаркети "АТБ", "Варус", Макдональдс, ресторани, кафе - зупинки громадського транспорту в різні напрямки міста Ціна $ 220 000 у.о. За будь- якими питаннями за цією або схожими пропозиціями звертайтесь за номером телефону, де вам відповість наш ріелтор Наталія 067 696 16 51. З повагою, команда Credo!
Кривий Ріг, Саксаганський, 95 Квартал
Продаж будинку у казковій місцині Центр-Міського району "Скелі МОДРУ" Кривий Ріг 16
  • П’ятикімнатна
  • 200 м2
  • 15 соток
40 000 $
цікава пропозиція - продаж будинку на березі Інгульця у природно-заповідній зоні "Скелі МОДРу". Геологічна пам’ятка природи загальнодержавного значення. Чудовий вид на місто й сусідні селища. Місце для втілення мрій! Будинок : 1) Три рівні, 200 кв.м. 2) Готова, оздоблена зала з вітражними вікнами, через які видно мальовничу картину берегу що захоплює дух! 3) Кухня з електричним обладнанням. 4) Два діючі санвузли. 5) Вода, електрика, інтернет. Запроєктовано : 1) Велике приміщення для сауни. 2) Санвузли. 3) Велика спальна кімната. 4) Мала спальна кімната з балконом. 5) Гараж. Земельна ділянка 15 сот : 1) Вихід до води та власний пірс !!! 2) Відпочинкові зони з альтанками. 3) Галявина для втілення проєктів ландшафтного дизайну. 4) Плодові дерева. На кого чекаємо? 1) Пропозиція для тих хто воліє жити у місті, але без міського шуму і пилу. 2) Для тих хто потребує релаксу кожного дня. 3) Для тих хто шукає місце для цілорічної дачної оселі. 4) Для підприємців, які шукають місце для об’єкту ексклюзивного відпочинку з можливістю чудово проводити час на природі не виїжджаючи з міста. 5) Для архітекторів, будівельників для втілення своїх проєктів. 6) Для фанатиків риболовлі. 7) Для собаківництва. Ідеальна місцина для розводу, вигулу, дресирування. Доїхати автомобілем можливо зі сторони Карачунів, Веселої дачі. Можливо не встоїте та влаштуєте прогулянку вздовж річки до парку Мершавцева. Всі деталі при огляді. Продається за 40 000$ За будь-якими питаннями за цією або схожими пропозиціями звертайтесь за номером телефону. З повагою, команда Credo!
Кривий Ріг, Центрально-Міський
Будинок 110 м² + тераса | 5 соток | Голишів, 2 км від Боратина Луцьк 2
  • Чотирикімнатна
  • 110 м2
  • 5 соток
82 000 $
Пропонуємо до продажу окремо стоячий будинок у с. Голишів — всього 2 км від Боратина та кілька хвилин їзди до Луцька. Будинок уже підготовлений до чистового ремонту, тому ви можете реалізувати інтер’єр повністю під свій стиль та потреби. Площа будинку: 110 м² + тераса Земельна ділянка: 5 соток Продумане планування: • 3 окремі спальні • простора кухня-вітальня • 2 санвузли • технічне приміщення Технічні характеристики: ✔ утеплення: мінвата 20 см + пінопласт 15 см ✔ тепла підлога по всій площі будинку ✔ вихід під камін ✔ електрика 10 кВт ✔ централізована вода ✔ інтернет ✔ газ по вулиці ✔ септик ✔ огорожа по периметру, окрім фасаду У вартість входить: • стяжка • штукатурка Локація: • асфальтований доїзд • зупинка транспорту — 200 м • поруч магазин, церква, стадіон та дитячий майданчик • заселена та спокійна вулиця • шкільний автобус ???? Ціна: 82 000 $ Деталі та огляд — телефонуйте або пишіть. ????0506354992
Луцьк
офлайн
Володимир
На сайті з 16 квітня 2020