1  / 4
Оренда офісу 159,2 м² у преміум-комплексі вул. Замарстинівська, 40 - фото 1
Оренда офісу 159,2 м² у преміум-комплексі вул. Замарстинівська, 40 - фото 2
Оренда офісу 159,2 м² у преміум-комплексі вул. Замарстинівська, 40 - фото 3
Оренда офісу 159,2 м² у преміум-комплексі вул. Замарстинівська, 40 - фото 4

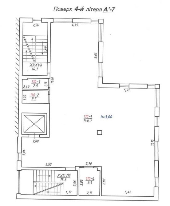
Оренда офісу 159,2 м² у преміум-комплексі вул. Замарстинівська, 40

Львів, Галицький

Поскаржитись
18 $
0 переглядів оголошення | 0 сьогодні
Додано: 8 березня 2026, ID: 4831242
Характеристики
  • Расположение в промзоне 
  • Общая площадь 159 м2
  • Этаж
  • Этажность
  • Ремонт Так 
  • Ні 
  • Так 
  • Отопление Собственная котельная 
  • Коммуникации Газ, Центральный водопровод, Электричество, Центральная канализация, Вывоз отходов, Асфальтированная дорога 
Опис
Оренда офісу 159,2 м² у преміум-комплексі вул. Замарстинівська, 40, Львів

Пропонуємо цілий поверх 159,2 м² у преміум-комплексі The Office

Переваги:
- Резервне живлення офісу та основних систем
- Паркомісце на підзесному паркінгу що входить у вартість
- Автономний, зручний 4-ий поверх у 7-рівневому Офіс-Hub
- Вільне планування (open space / кабінет)
- Готова кухня з вбудованими меблями
- Панорамні преміальні-алюмінієві вікна з напиленням від УФ
- Безшумний швидкісний ліфт з картковим доступом
- Підземний паркінг + гостьовий
- Закритий двір з кав’ярнею та озелененням
- 6 хв пішки до Forum Lviv, 12 хв до пл. Ринок

Ідеально для IT-команд, креативних агенцій (20–40+ осіб)

Центр Львова — зручний транспорт
Вартість - 18 $/м² + ЕКП (індивідуальний підхід)
Довгострокова оренда
Від власника, без комісії
Зворотній зв’язок
TheOffice
офлайн
Схожі оголошення
Оренда офісу в 2 хв їзди від пр. Відродження! Луцьк 6
    30 000 грн.
    Оренда офісу в 2 хв їзди від пр. Відродження! РОЗТАШУВАННЯ: Волинська обл., Луцький р-н, с. Липини, вул. Січових Стрільців, 2в. Розвинена інфраструктура, поруч: Кедем, аптека, заклади харчування, продуктовий магазин, пошта. Зручна транспортна розв'язка. Фасадне приміщення. ХАРАКТЕРИСТИКИ: - площа: 156.7 кв.м. - кабінетне планування - 1-ий та 2-ий поверх - цілодобовий доступ до приміщення - окремий вхід - свій санвузол - можливість розміщення рекламної вивіски з торця - парковка на більше 12 місць КОМУНІКАЦІЇ: - електроенергія: лічильник - автономне газове опаленння, (котел) - водопостачання: холодна-гаряча, (лічильник, каналізація) - природня вентиляція - інтернет - кондиціонер в кожному кабінеті - тераса Вартість оренди: 30 000 грн - менше 200 грн за м.кв. Ольга Синиця
    Луцьк
    Оренда приміщення в ЖК "Італійський" Луцьк 7
      24 000 грн.
      Оренда приміщення в ЖК "Італійський" РОЗТАШУВАННЯ: Волинська обл., Луцький р-н, с. Тарасове, вул. Боголюбська, 116. Зручна транспортна розв'язка. ХАРАКТЕРИСТИКИ: - площа: 76м (можливість оренди частини (38 м.кв.)) - відкрите планування - 1-ий поверх - цілодобовий доступ до приміщення - фасадний, окремий для погрузки-вигрузки вхід - новий ремонт - свій санвузол - можливість розміщення рекламної вивіски на фасаді - парковка на 6-10 місць КОМУНІКАЦІЇ: - електроенергія: лічильник - е-потужність 30кВт - автономне електричне опаленння, (котел) - водопостачання: холодна-гаряча, (лічильник) - природна вентиляція - інтернет - літній майданчик Об’єкт здається БЕЗ КОМІСІЇ для орендаря за 24 000 грн менеджер об'єкту Ольга Синиця 095 805 1772
      Луцьк
      Оренда приміщення в ЖК РЕНЕСАНС, найкраща цінова пропозиція! Луцьк 4
        28 000 грн.
        Оренда приміщення в ЖК РЕНЕСАНС, найкраща цінова пропозиція! РОЗТАШУВАННЯ: м. Луцьк, просп. Відродження, 32а в ЖК Ренесанс. Розвинена інфраструктура, поруч: заклади харчування, продуктовий магазин, зупинки громадського транспорту. Активний автомобільний, пішохідний трафік. Зручна транспортна розв'язка. Фасадне приміщення. ХАРАКТЕРИСТИКИ: - площа: 46,7 кв.м - відкрите планування - 2-ий поверх - цілодобовий доступ до приміщення - фасадний вхід - базовий ремонт під орендаря - спільний санвузол - мокра точка в залі - можливість розміщення рекламної вивіски на фасаді - парковка на більше 12 місць - ліфт КОМУНІКАЦІЇ: - електроенергія: лічильник - автономне електричне опалення, (котел) - природна вентиляція Вартість оренди 28 000 грн (без комісії для орендаря) Ольга Синиця 095 805 1772
        Луцьк