1  / 3
Квартири під бізнес, 1 поверх, новий ЖК - фото 1
Квартири під бізнес, 1 поверх, новий ЖК - фото 2
Квартири під бізнес, 1 поверх, новий ЖК - фото 3

Квартири під бізнес, 1 поверх, новий ЖК

Чернівці

Поскаржитись
1 700 $
14 $ за м²
2 перегляди оголошення | 0 сьогодні Показати статистику
Додано: 5 березня 2026, ID: 4823392
Характеристики
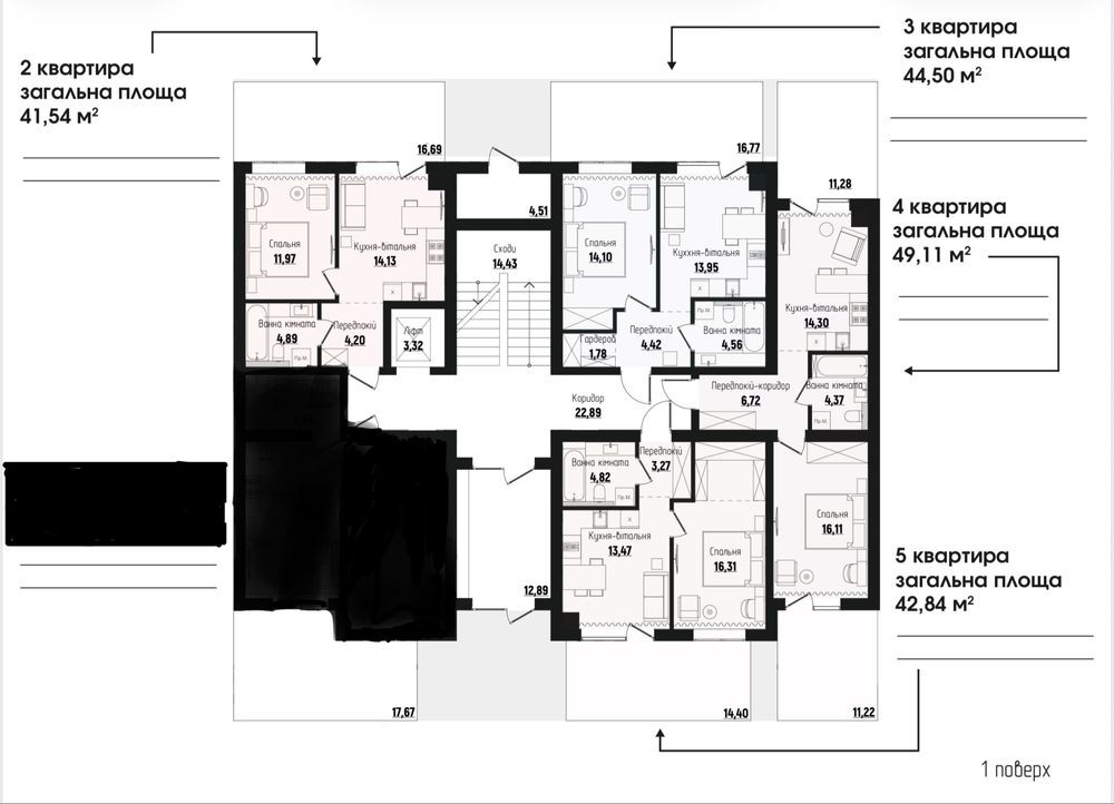
  • Общая площадь 125 м2
  • Этаж
  • Этажность
  • Ремонт Ні 
  • Меблірування Ні 
Опис
Комерційні приміщення на 1 поверсі в житловому комплексі

Первинно — однокімнатні квартири з можливістю використання під бізнес.
Будинок зданий в експлуатацію

Характеристики:
• Площа: 40–125 м²
• Перший поверх

Зручний формат для:
• офісу
• салону краси
• студії
• магазину
• сервісних послуг

Підходить для власного бізнесу або здачі в оренду.
Телефонуйте для отримання деталей
Зворотній зв’язок
Андрій
офлайн
Схожі оголошення
    700 000 $
    Продається виробниче приміщення в центрі Києва (Шевченківський р-н, вул. Жилянська). Ідеально підходить під склад, СТО, виробництво та інші види діяльності. Характеристики: Потужність електромережі: 150 кВт Висота стелі: 65 метрів Конструкція: капітальна цегляна будівля Ділянка: 15 соток, обгороджена, з окремим заїздом та забором. Комунікації: вода, каналізація. Безперебійне електропостачання. Багатофункціональне приміщення у самому серці міста. Подробиці по телефону БАГАТО КОМЕРЦІЙНОЇ НЕРУХОМОСТІ ДЛЯ ПРОДАЖУ ТА ОРЕНДИ
    Київ, Шевченківський
    Вигідна інвестиційна пропозиція у центрі Києва! Продається виробничо-складське приміщення у Шевченк Київ 3
      700 $
      Вигідна інвестиційна пропозиція у центрі Києва! Продається виробничо-складське приміщення у Шевченківському районі по вулиці Старовокзальній. Характеристики об'єкту: Розташування: Центр Києва, Шевченківський район, вул. Старовокзальна. Тип об'єкту: Виробничо-складське приміщення. Поверх: 2 поверх. Площа: 1500 кв. (Виробничо-складська) + 200 кв.м. (Офісна). Висота стелі: 5.5 метрів. Вантажні ліфти: 2 вантажні ліфти вантажопідйомністю 3 тонни кожен. Інфраструктура: Санвузол, душова. Територія: Закритий двір, зручний заїзд для фур, паркування на 10 автомобілів. Ціна: 700 у.о. за кв.м. Відмінна можливість для розвитку вашого бізнесу чи вигідного інвестування!
      Київ, Голосіївський
      Продаж логістично-складський центр 3000 кв.м. Київська обл. Рокитне 11
        1 300 000 $
        Пропонується багатофункціональний логістично-складський центр з офісними приміщеннями, ідеально підходить для агропромислового сектору (зерновий термінал, агрологістичний хаб, центр перевалки продукції). Загальна площа будівель: 3 000 м² Рік побудови: 2011–2015 Розташування: В межах міста, 25 км від траси Одеса–Київ, 100 км до м. Київ. Земельна ділянка: Окрема, огороджена територія з власною пожежною водоймою та системою охорони. Характеристики комплексу: Зерносховище: Місткість 5 000 тонн. Сушильний комплекс: Продуктивність до 200 тонн/добу. Вагова: Вантажопідйомність до 60 тонн. Навіси: Для зберігання зерна насипом та в біг-бегах. Безпека: Пожежна водойма, відеоспостереження, цілодобова охорона. Офісні приміщення: Комфортні, повністю мебльовані кабінети. Індивідуальне газове опалення, кондиціонери, сучасна пожежна сигналізація. Додаткові зручності: Обладнана кухня, душова кабіна, система сигналізації, захисні решітки на вікнах. Готовий до негайної експлуатації, не потребує додаткових інвестицій.
        Рокитне
        офлайн
        Андрій
        На сайті з 16 квітня 2020