1  / 4
Без комісії!Найкраща інвестиція в Ужгороді — ЖК 44 Avenue! - фото 1
Без комісії!Найкраща інвестиція в Ужгороді — ЖК 44 Avenue! - фото 2
Без комісії!Найкраща інвестиція в Ужгороді — ЖК 44 Avenue! - фото 3
Без комісії!Найкраща інвестиція в Ужгороді — ЖК 44 Avenue! - фото 4

Без комісії!Найкраща інвестиція в Ужгороді — ЖК 44 Avenue!

Ужгород

Поскаржитись
43 260 $
4 перегляди оголошення | 0 сьогодні Показати статистику
Додано: 1 квітня 2026, ID: 4890822
Характеристики
  • Без комісії Так 
  • Кімнат
  • Загальна площа 41.2 м2
  • Площа кухні 6 м2
  • Поверх
  • Поверховість
  • Ремонт Під чистове оздоблення 
  • Тип стін Цегляний 
Опис
Пропонується квартира у сучасному житловому комплексі бізнес-класу, який вже сьогодні формує новий рівень міського життя в Ужгороді.

ЖК 44 Avenue розташований у центральній частині міста, поруч із набережною, навчальними закладами, клініками, магазинами та всією необхідною інфраструктурою. Це поєднання локації, якості будівництва та концепції робить комплекс одним із найпривабливіших для інвестування.
•Підземний паркінг
•Бомбосховище
• система «Розумний дім»
•– власна інфраструктура всередині комплексу

Інвестиційна привабливість:
– доступна ціна на етапі будівництва
– стабільне зростання вартості до моменту здачі
– високий попит на оренду в цій локації
– ліквідний формат квартири

Комплекс активно будується, введення в експлуатацію заплановане на 2026 рік.
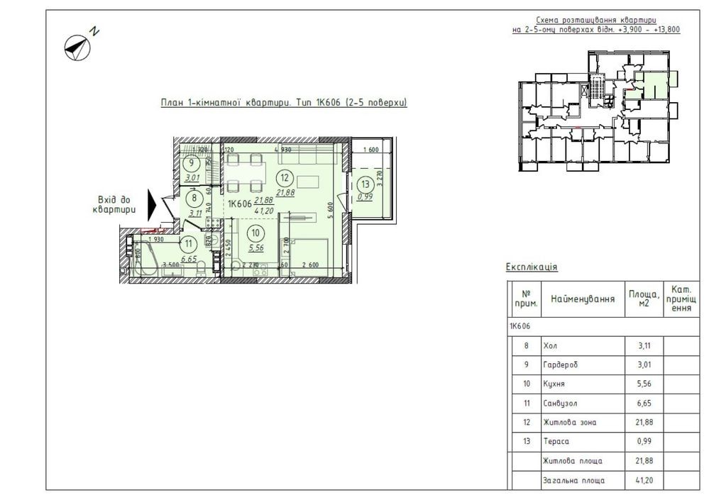
1-кімнатна квартира в ЖК 44 Avenue

Загальна площа — 41,20 м²
Функціональне сучасне планування

• простора житлова зона — 21,88 м² (можливість зонування під спальню та вітальню)
• окрема кухня — 5,56 м²
• гардеробна — 3,01 м²
• санвузол — 6,65 м² (повноцінний, просторий)
• хол — 3,11 м²
• тераса

Переваги:
• продумане планування без зайвих метрів
• велика житлова зона — легко адаптується під різні сценарії життя
• наявність гардеробної
• підходить як для проживання, так і для оренди

• індивідуальне газове опалення — економія та повний контроль температури.
• Безперебійне електропостачання!!!
Можливе розтермінування!
Ліквідний варіант у сучасному житловому комплексі.
Є також інші пропозиції від даного забудовника та інших забудовників.

Звертайтесь — підберу найкращий варіант у цьому комплексі відповідно до вашого бюджету та цілей.
Зворотній зв’язок
Марія
офлайн
Схожі оголошення
Терміново!Продам двокімнатну квартиру в Аркадії з видом на море Одеса 15
  • Двокімнатна
  • 75 м2
  • 15 / 23 пов.
99 999 $
Терміново! Продам квартиру з видом на море в Аркадії! Ціна нижча, ніж у новобудовах на Таїрова!! Генератор, свій резервуар з водою, в паркінге бомбосховище з wi-fi Новобудова по Гагарінському плато, 5/2, район ресторану «Арарат». Локація, куди приїжджають жити та відпочивати. Тут не пояснюють, де море — його видно із вікон. Квартира, яка закриває одразу два завдання: комфорт для себе та зрозумілий дохід. - Дві спальні - Простора кухня-вітальня Це той формат, який завжди потрібний. Люди шукають саме таке житло — і швидко ухвалюють рішення. Оренда аналогічних квартир в Аркадії стартує від 120 євро на добу. Локація працює цілий рік: влітку — подобово, решта часу — стабільна довгострокова оренда. Об єкт ліквідний: його легко здавати та вигідно перепродати. — Одразу потрапляєш до центру життя Одеси - море, ресторани, Інфраструктура: - в пішій доступності, все вже зрозуміло та звучно! - Високий попит на оренду без простоїв Переваги : — охорона та консьєрж 24/7 - Закрита територія - зручний заїзд з Аркадії та Плато! - статусний житловий комплекс. У подарунок дизайн-проект з продуманою розстановкою меблів можна швидко реалізувати без зайвих витрат часу. Ціна нижча, ніж у нових будинках на Таїрова, при цьому рівень життя, ліквідність та прибутковість – значно вищий. Такі об єкти не затримуються над ринком. Якщо ви шукаєте варіант біля моря зі зрозумілою вигодою – це він.!
Одеса, Приморський
Продаж 1-кімнатної квартири біля метро Теремки з ремонтом в новому ЖК комфорт класу Авеню 42, Валерʼ Київ 9
  • Однокімнатна
  • 39.1 м2
  • 12 / 25 пов.
63 000 $
Продаж 1-кімнатної квартири з ремонтом в новому ЖК комфорт класу Авеню 42, Валерʼяна Підмогольного 5 (Глушкова 42), Київ, Голосіївський район біля метро Теремки. В будинку є генератор на опалення, воду, ліфти. Зданий в 2024 році, територія оздоблена, право власності 2025 року. Податки сплачуємо. Ключі на руках, можна заїжджати. Світла квартира площею 39,1 м² з неймовірним панорамним краєвидом на 12 поверсі 25 поверхового будинку. Вид на ліс, вікна у двір. Вже виконаний ремонт від забудовника (шпалери, підлога, сантехніка), меблів немає. Лічильники день/ніч на електрику, самі передають показники; лічильники на воду, можна встановити лічильник на опалення. Вода та опалення централізоване. Плита електрична. Новий сучасний будинок із закритою територією та охороною. До метро Теремки — 10 хвилин пішки. Поруч: • ТРЦ Respublika Park • ТРЦ Магелан • ВДНГ • магазини, кафе, спортклуби та вся необхідна інфраструктура. Цена: 63000у.е. + комісія АН Тел. 063-978-83-80, Ольга.
Київ, Голосіївський
Продаж Без % 2К квартири ЖК Перовський, вулиця Алішера Навої, 69, Воскресенка, Дніпровський район, Л Київ 16
  • Двокімнатна
  • 82.4 м2
  • 22 / 25 пов.
130 000 $
Продаж без комісії 2-кімнатної квартири ЖК Перовський, вулиця Алішера Навої, 69, Воскресенка, Дніпровський район, Лівий берег Розглядаємо безготівковий розрахунок, держпрограми Загальна площа — 82,4 м², житлова — 39,7 м², кухня — 11,9 м² 22 поверх із 25 у будинку 2012 року (монолітно-каркасний) Простір і комфорт ідеальний варіант для сім'ї: — 2 окремі кімнати — кухня-вітальня — гардеробна зона — суміжний санвузол з ванною — просторий коридор і балкон Квартира з авторським ремонтом: — Спальня об'єднана з панорамною лоджією ідеальне місце для робочої зони або лаунж-простору. — Дитяча кімната розділена на зони: для навчання, творчості та активних ігор. — Кухня-вітальня з усією необхідною технікою вбудований холодильник, посудомийна машина, варильна поверхня з витяжкою, духовий шкаф. Зона відпочинку з диваном, телевізором та кондиціонером. — Окрема гардеробна зона з вбудованою пральною машиною. ОСББ. Встановлений генератор чи працюють ліфти, вода та опалення під час відключень світла. На території цілодобова охорона та відеоспостереження, гостьовий та підземний паркінг (УКРИТТЯ). Інфраструктура та локація: — метро Дарниця пішки 20 хв., зупинка громадського транспорту біля будинку — на перших поверхах ЖК і поруч є все необхідне - супермаркети, банки, аптеки, пошта, фітнес-центр, кав'ярні та ресторани, аптеки, міська лікарня і т.д. — парк «Перемога», прогулянкові зони, озера — школи та дитячі садочки в пішій доступності; дитячі ігрові майданчики Телефонуйте (або пишіть Viber/Telegram) для попереднього запису на перегляд. Без комісії для покупця. Ціна 130 000 у.е. Марина, тел.: 063 392 35 35
Київ, Дніпровський