1  / 8
Продам дом ХАРЬКОВ  Дуплекс  у закритому коттеджному  містечку - фото 1
Продам дом ХАРЬКОВ  Дуплекс  у закритому коттеджному  містечку - фото 2
Продам дом ХАРЬКОВ  Дуплекс  у закритому коттеджному  містечку - фото 3
Продам дом ХАРЬКОВ  Дуплекс  у закритому коттеджному  містечку - фото 4
Продам дом ХАРЬКОВ  Дуплекс  у закритому коттеджному  містечку - фото 5
Продам дом ХАРЬКОВ  Дуплекс  у закритому коттеджному  містечку - фото 6
Продам дом ХАРЬКОВ  Дуплекс  у закритому коттеджному  містечку - фото 7
Продам дом ХАРЬКОВ  Дуплекс  у закритому коттеджному  містечку - фото 8

Продам дом ХАРЬКОВ Дуплекс у закритому коттеджному містечку

Харків, Холодногірський

Поскаржитись
130 000 $
0 переглядів оголошення | 0 сьогодні
Додано: 14 листопада 2025, ID: 4487131
Характеристики
  • Без комісії Так 
  • Кімнат
  • Загальна площа 140 м2
  • Поверховість
  • Площа ділянки 4 сот.
  • Опалення Тепловий насос 
  • Ремонт Після будівельників 
  • Комфорт Відеоспостереження, Гараж 
  • Коммуникации Скважина, Электричество, Центральная канализация, Вывоз отходов, Асфальтированная дорога 
Опис
Продам сучасний будинок у Харкові

Сучасний дуплекс у закритому котеджному містечку RAY ELENOVKA
Лише 15 хвилин до центру міста!

Адреса: Харківська обл., Харківський р-н, с. Рай-Оленівка, вул Рай Оленівська 1а

ГОЛОВНА ПЕРЕВАГА — власна земельна ДІЛЯНКА майже 4 СОТКИ , де можна облаштувати свій простір для відпочинку чи саду.

Просторий двоповерховий дім із загальною площею 141,69 м²
(1-й поверх — 68,56 м²,
2-й — 73,13 м²) створений для комфортного життя в оточенні природи.
Закрите містечко з відеоспостереженням, контролем доступу та власною мінеральною водою, підведеною до кожного будинку.



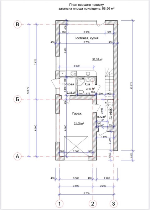
План першого поверху (68,56 м²):
• Гараж — 21,00 м²
• Топкова — 3,19 м²
• Санвузол — 3,47 м²
• Шафа/гардероб — 9,72 м²
• Простора гостинна з кухнею — 31,18 м²



План другого поверху (73,13 м²):
• Три житлові кімнати — 17,55 м² / 11,05 м² / 16,24 м²
• Два санвузли — 6,21 м² / 6,75 м²
• Хол — 9,37 м²
• Балкон



Переваги:
• Закрите котеджне містечко з відеонаглядом і пропускним контролем
• Мінеральна вода підведена до кожного будинку
• Просторий гараж
• 3 спальні + велика кухня-вітальня
• Балкон і можливість облаштування тераси
• Усього 15 хвилин до центру міста



Загальна площа: 141,69 м²
Гараж: є
Кімнат: 3
Санвузлів: 3
Мінеральна вода
Закрите містечко з охороною

Більш детальна інформація за номером -38********81
Чекаємо на вас
Зворотній зв’язок
КМ Ray-Elenovka
офлайн
Схожі оголошення
4-к будинок Дніпро, Новоолександрівка, 168000 $ Дніпро 20
  • Чотирикімнатна
  • 125 м2
  • 15 соток
168 000 $
Продам сучасний будинок у с. Новоолександрівка вул. Телевізійна Доглянутий 2-поверховий цегляний будинок із зовнішнім утепленням, загальною площею 125 кв.м (житлова 76 кв.м). Розташований на приватизованій ділянці площею 15 соток. У будинку: 4 окремі кімнати, простора кухня, гардеробна, санвузол На території: окремо розташований гараж, глибокий льох, літня кухня, душ та санвузол, зручний заїзд у двір на 4 автомобілі. Участок дуже доглянутий, сучасний город з автоматичним поливом. Комунікації: автономне газове опалення, центральне водопостачання, газ, каналізація (вигрібна яма). Вулиця асфальтована, поряд проживають порядні сусіди. Територія під охороною. будинок, стіни: керамічна цегла; житлових повірхів: 2; ділянка: 15 сот.
Дніпро
Продаж будинку з гаражем у ЦМ районі (карнаватка) Кривий Ріг 11
  • Двокімнатна
  • 32.8 м2
  • 5.5 соток
6 900 $
Мрієте жити у центрі міста і при цьому не відчувати шуму мегаполісу? Бажаєте мати місце для зустрічі друзів на шашлики та інших заходів? Пропонуємо будинок у центрально-міському районі на карнаватці по вул. Гризодубової (Олександра Кошиця). Будинок цегляний, тому взимку буде тепло. Сам будинок має дві кімнати із загальною площею 32.8 кв.м., житлова площа 19.9 кв.м., кухня 7.2 кв.м. Будинок в стані під ремонт але на перший час можно зайти та жити. Сам будинок Розташований на 5.5 сотках землі, на якій ви зможете приємно проводити час зі своїми рідними та близькими людьми. Для опалення є газовий котел. Лічильники на газ, світло. Є невеликий борг по газу, входить в ціну. Ванна в будинку, туалет на вулиці. У дворі є льох та сарай. Крім того, є гарний гараж, що дозволить Вам зберігати своє авто в безпеці. Є кадастровий номер. Є невеликий борг по газу, який входить в ціну. Телефонуйте та приходьте на перегляд!
Кривий Ріг, Центрально-Міський
Продам дом в Крыжановке Одеса 7
  • Чотирикімнатна
  • 90 м2
  • 3.5 сотки
45 000 $
Предлагается к продаже дом в Крыжановке на Морской стороне. Два этажа, 4 комнаты общей площадью 90кв.м. 1й этаж: две раздельные спальни, кухня-студия, Сан.Узел Т/Ванна. 2й этаж: две комнаты. Жилое состояние. Все коммуникации: свет, вода, газ, в рабочем состоянии. Автономное отопление газовый котел (АГВ). Хороший, асфальтированный подъезд. Просторный двор. Цена 45 000у.е.
Одеса, крыжановка
офлайн
КМ Ray-Elenovka
На сайті з 16 квітня 2020