1  / 4
3кімн збудована новобудова, можливе розтермінування - фото 1
3кімн збудована новобудова, можливе розтермінування - фото 2
3кімн збудована новобудова, можливе розтермінування - фото 3
3кімн збудована новобудова, можливе розтермінування - фото 4

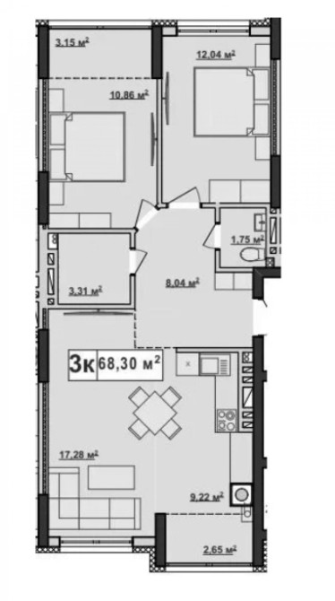
3кімн збудована новобудова, можливе розтермінування

Івано-Франківськ

Поскаржитись
44 800 $
0 переглядів оголошення | 0 сьогодні
Додано: 17 жовтня 2025, ID: 4391239
Характеристики
  • Без комісії Так 
  • Кімнат
  • Загальна площа 68 м2
  • Площа кухні 14 м2
  • Поверх
  • Поверховість 10 
Опис
Продаж трикімнатної квартири за доступною ціною !!!Гарне двостороннє планування Комплекс розташований в районі з хорошою інфраструктурою та гарним транспортним сполученням.В пішій доступності міське озеро, цілодобові супермаркети (Сільпо, АТБ), школи, дитячі садки, медичні заклади також в наявності є інші цікаві об'єкти по місту можливе розтермінування до 3х роківФункціональне двостороннє планування квартириТЕЛЕФОНУЙТЕ для детальнішої інформаціїКод об'єкта 782
Зворотній зв’язок
НАТАЛІЯ
офлайн
Схожі оголошення
Продам 4к кв. Гагарина с А.О. Луганськ 9
  • Чотирикімнатна
  • 72.6 м2
  • 1 / 5 пов.
76 000 $
Продается в Луганске 4-комн. квартира (кв. Гагарина) Этаж 1/5 Общая площадь 72,6 кв.м Автономное отопление Вход на балкон с двух комнат, переделан в комнату Окна м/п Состояние как на фото Продажа с мебелью и техникой В шаговой доступности: школа, садик, магазины, супермаркеты, кафе, аптека Есть место под домом для авто В пешей доступности транспортная остановка Собственник один, будет лично на сделке (продажа без доверенности) Без долгов по коммун. платежам, без обременений и прописанных 7 600 000₽ +79592093022 Александр
Луганськ, Жовтневий
Продам двокімнатну квартиру на Піонерській. Біла Церква 15
  • Двокімнатна
  • 45 м2
  • 4 / 5 пов.
31 000 $ Торг
Продаж двокімнатної квартири в Білій Церкві на Піонерській по вулиці Волонтерська. Поверх,поверховість: 4\5 (четвертий поверх п’ятиповерхового будинку). Площа (загальна,житлова,кухня): 45,28,6. Кількість кімнат: 2 (дві). Будинок: залізобетонна панель. Планування: роздільні кімнати і санвузол. Стан: потрібен ремонт. Розташування в будинку: не кутова. Опалення: централізоване. Гаряча вода: газова колонка. Лічильники: газ,електроенергія,вода. Вартість: 31.000 дол. Торг можливий. Обтяжуючі обставини,борги: відсутні. Розрахунок: готівка,безготівковий,іпотека. Пропозиція від: агенції нерухомості. Телефон: +38(097)-879-80-99 Запрошуємо до співпраці продавців і орендодавців нерухомості. Агенція нерухомості пропонує повний перелік операцій з нерухомістю та супровідною документацією. Купівля-продаж, оренда, обмін житлових та комерційних об’єктів, земельних ділянок. Оцінка майна ринкова та для оподаткування. Технічні паспорти. Узаконення самочинного будівництва, добудови, перепланування. Початок будівництва та ввід в експлуатацію. Землевпорядні роботи: кадастровий номер, приватизація, розподіл, об’єднання, зміна призначення. Кредитування під заставу нерухомості. Безкоштовно приймаємо заявки від продавців та орендодавців. Гарантія конфіденційності. Юридичний супровід. м.Біла Церква Тел.(097)-879-80-99
Біла Церква, Піонерська
Продам 2-Х з автономним опаленням.Гараж.Підвал. Біла Церква 15
  • Двокімнатна
  • 52 м2
  • 1 / 3 пов.
35 000 $ Торг
Продам 2-Х кімнатну квартиру на Залізничному Селищі по вул.Карбишева (Люльки). Не кутова. Панельний будинок 1973 року побудови. Індивідуальне газове опалювання. Великий добудований і узаконений балкон через кімнату і кухню. Площа 52 квадрата. Під будинком великий підвал. На задньому дворі навпроти вікна капітальний гараж. Квартира в житловому стані. Металопластикові вікна і балкон. Газова колонка на гарячу воду. Тихий затишний двір і доброзичливі сусіди. Ціна: 35.000 у.о. з Торгом. Запрошуємо до співпраці продавців і орендодавців нерухомості. Агенція нерухомості пропонує повний перелік операцій з нерухомістю та супровідною документацією. Купівля-продаж, оренда, обмін житлових та комерційних об’єктів, земельних ділянок. Оцінка майна ринкова та для оподаткування. Технічні паспорти. Узаконення самочинного будівництва, добудови, перепланування. Початок будівництва та ввід в експлуатацію. Землевпорядні роботи: кадастровий номер, приватизація, розподіл, об’єднання, зміна призначення. Кредитування під заставу нерухомості. Безкоштовно приймаємо заявки від продавців та орендодавців. Гарантія конфіденційності. Юридичний супровід. м.Біла Церква Тел.(097)-879-80-99
Біла Церква, Залізничне Селище
офлайн
НАТАЛІЯ
На сайті з 16 квітня 2020