1  / 6
Продається котедж спарка в Рудно. - фото 1
Продається котедж спарка в Рудно. - фото 2
Продається котедж спарка в Рудно. - фото 3
Продається котедж спарка в Рудно. - фото 4
Продається котедж спарка в Рудно. - фото 5
Продається котедж спарка в Рудно. - фото 6

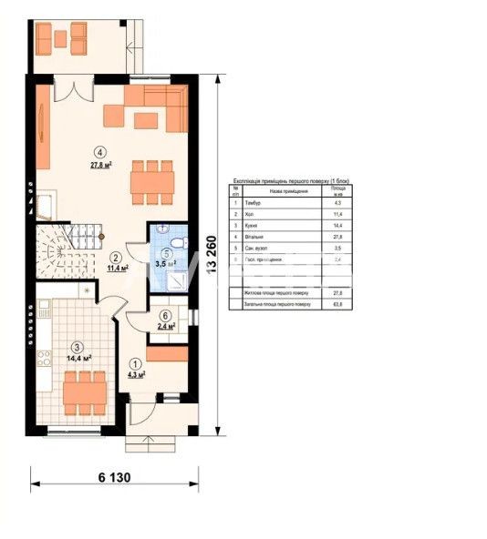
Продається котедж спарка в Рудно.

Рудное

Пожаловаться
95 000 $
731 $ за м²
0 просмотров объявления | 0 сегодня
Добавлено: 6 октября 2025, ID: 4350360
Характеристики
  • Без комиссии Нет 
  • Комнат
  • Общая площадь 130 м2
  • Этажность
  • Площадь участка 2.8 сот.
Описание
Продається котедж спарка в Рудно.



Будинок збудований з якісних матеріалів.

Кількість кімнат: 4.

Поверховість: 2.

Загальна площа 130 м2, 2,8 сот землі.

Два поверхи.



На першому поверсі просторе планування кухня,вітальня,тех- приміщення,та вихід на задній двір, де можна облаштувати відпочинкову зону.

Другому поверсі три просторі кімнати та гардеробна,можливе облаштування мансарди під ще одну кімнату.

Комунікації світло, газ підведенні.

Каналізація -септик, вода скважива.

Утеплено пінопластом 10 см шестикамерні вікна з подвійним скло пакетом,двері броньовані.



Гарна локація для життя.



Телефонуйте!

код 367757




Код об'єкта: d107.7`367757`263. АН "Атланта".
Більше інформації та світлин за посиланням: https://www.atlanta.ua/uk/lvov/object/tip-doma-dom/367757
Обратная связь
АН 'Атланта'
офлайн
Похожие объявления
Продам будинок з великою ділянкою в с. Пилиповичі Пилиповичи 19
  • Четырехкомнатная
  • 80 м2
  • 30 соток
32 000 $
Площа будинку: 80 м2. Площа ділянки: 30 соток (приватизована). Опис: Продається житловий будинок у мальовничому селі Пилиповичі, Бучанський район, Київська область. Відстань до Києва 40 км (Академмістечко). Характеристики: - 4 житлові кімнати, кухня, веранда, підсобні приміщення; - Господарські споруди: літня кухня, сараї, підвал; - Електрика підключена; - Вода: колодязь на території; - Газ: труба по вулиці, є проект на підключення; - Опалення: пічне; Переваги: - Велика ділянка з плодовим садом (яблуні, груші, горіхи); - Простір для городу, теплиці або новобудови; - Зелений двір із місцем для відпочинку; - Вулиця заселена, поруч привітні сусіди; Інфраструктура: - Новий дитячий садок, школа, будинок культури, амбулаторія, аптека, банкомат, магазини, кафе та ресторани; - Зручна транспортна розв’язка: залізнична станція та маршрутки до райцентру; Документи: - Всі документи в порядку: технічна документація, кадастровий номер, план забудови, проект газифікації; - Готові до продажу;
Пилиповичи
Без комиссии. Дом VIP 850м, дизайн.ремонт, мебель, техника, Центр Харьков 20
  • 11 комнатная
  • 850 м2
  • 20 соток
1 260 000 $ Без комиссии
Без комиссии. Дом VIP 850м, дизайн.ремонт, мебель, техника, Центр Без комиссии. АН «Аппартаменты». Продам Дом VIP класса 850м, жилая площадь 321м, 4 уровня, авторский дизайн, бассейн, сауна + купель, вся мебель и техника, 7 с/у, 3 кухни, 4 спальни хозяйских и 2-е спальни для персонала, гараж 73м, ровный и квадратной формы участок 20 соток (рядом есть 20 соток, можно докупить и увеличить участок до 40 соток), ландшафт, Центр. Эксклюзивный и единственный в городе Харькове коттедж VIP уровня в элитном коттеджном окружении, площадью 850 метров в 4 уровнях, соответствующий современным технологиям. Шикарный дизайнерский ремонт, над которым работали несколько профессиональных дизайнеров. Дом оборудован полностью всей современной бытовой техникой (холодильники, духовки, две стиралки-автомат). -- Подвал - 206м: большая студия 81м с теннисом и бильярдом, зона сауны 65м (купель, бассейн 7м, душевая, парилка 8м, массажный зал 15м), с/у, кухня 7м. -- 1 этаж - 275м: большой холл 42м, гостиная-столовая 100м, кабинет 14м, кухня 15м, гардеробная, камин, с/у, гараж 73м. -- 2 этаж - 258м: 3 спальни (38м, 28м, 26м), 4 с/у, терраса, постирочная, 2 комнаты для персонала (18м, 12м). -- Мансарда – 111м: гостиная 53м с кухней 14м, спальня 33м, гардеробная, с/у. Дом оборудован системой кондиционирования YORK (CША), трехконтурная система отопления, центральные коммуникации (канализация, водопровод), гардеробные комнаты, каминный зал. На просторном участке в 20 соток газонная трава и тротуарная плитка, освещение, видеонаблюдение. Гараж 73 м2 на несколько машин с двумя автоматическими воротами. Въездные ворота в дом автоматические. Коттедж расположен в элитном районе Харькова, находящемся в центральной части города. Рядом полноценная инфраструктура.
Харьков, Шевченковский, Центр
Продається будинок в м. Чернігів Чернигов 18
  • 12 комнатная
  • 350 м2
  • 8 соток
310 000 $ Без комиссии
Продається будинок в м. Чернігів 350м кв 8 соток участок Будинок зроблений з червоної цегли, утеплений 150мм мінеральної вати і покритий композитом із алюмінію. Високий металічний забор профнастил. Є стоянка та навіс для авто. Заїзд для машин. Скрізь по всьому будинку тепла підлога. Проведений газ та електрика 3 фази 16,5 Квт. 1 поверх налічує 6 однокімнатних квартир студій. В кожній квартирі є санузел та душ. Під сходами вивід на окремий загальний санузел. Окна пластикові Rehau 70 з енергозбереженням. 2 поверх налічує 2 однокімнатні квартири студії і 2 двухкомнатні квартири. В кожній квартирі є душ і санвузол. Також на 2 поверсі знаходиться котельня В ній є рекупіратор горячої води, 2 газових котли Германія Vaillant кондицаціонний, 1 електрокотел Vaillant. Є безперебойчики для котлів Централізоване постачання води. Електропроводка розведена по всьому будинку. Центральна каналізація біля дома 10м До центру 5 хв на авто. До парку та стадіону пішком 5 хв До ринку 7 хв Покладена дорога якісна плитка на полах Будинок можна використовувати: -для проживання великої сім’ї -сдачу в аренду на постійній основі та посуточно -під любий бізнес -під будинок для престарілих -можна під офіс, клініку, швейну майстерню та багато всього іншого. Велика територія, яку потрібно трішки привести до ладу, прибрати Можна зробити зону для відпочинку, поставити столики, дитячий майданчик, лавки, мангал або зробити якусь додаткову постройку (баню, сауну, тд) Продаж від власника Не ріелтор ! Прямий зв’язок з власником Ігорь 0 (67) 366 29 06 Ціна 310 тис.$, є торг. Відеоогляд будинку можна подивитися в Тік Ток . Нік antonklim28 Ріелторам прохання не турбувати
Чернигов
офлайн
АН 'Атланта'
На сайте с 16 апреля 2020